Menu
Wohnung
Fire Icon9

Atemberaubende Ein-Schlafzimmer-Wohnung mit Panoramablick

Kaufpreis 553.562 €
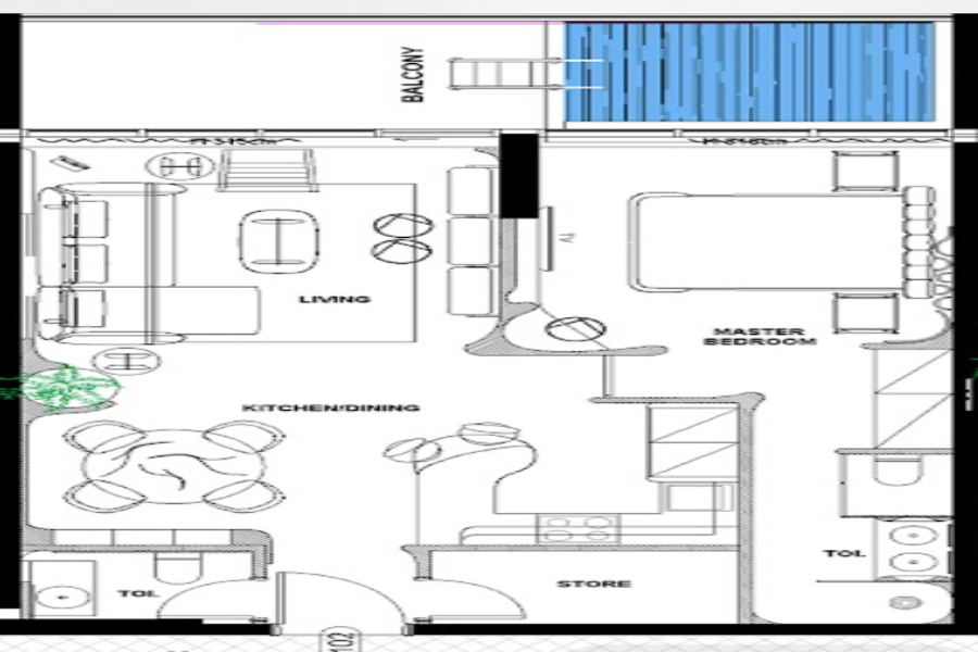
Wohnfläche
ca. 85,53 m²
Anzahl Zimmer
2
Anzahl Schlafzimmer
1
Anzahl Badezimmer
1
Anzahl Balkon / Terrasse
1
Zustand
Erstbezug

Objektbeschreibung

Willkommen in einem charmanten Apartment mit einem Schlafzimmer, das sich perfekt für Investoren und Singles eignet, die einen gemütlichen und einladenden Lebensraum suchen. Diese reizvolle Wohnung bietet eine freundliche Umgebung, in der Sie sich vom ersten Moment an wie zu Hause fühlen werden. Das Highlight dieser Wohnung ist die geräumige Küche, die ideal für alle ist, die gerne kochen und Gäste bewirten. Mit viel Arbeitsfläche und Stauraum haben Sie alles, was Sie für die Zubereitung köstlicher Mahlzeiten brauchen. Lassen Sie sich die Gelegenheit nicht entgehen, diese Wohnung zu Ihrem eigenen zu machen!

WeiterlesenWeniger anzeigen

Ausstattung

Wenn Sie dieses atemberaubende Apartment mit einem Schlafzimmer in den Natuzzi Harmony Residences in Dubai betreten, werden Sie mit einer Reihe von erstklassigen Annehmlichkeiten und Einrichtungen begrüßt, die ein luxuriöses und ganzheitliches Wohnerlebnis versprechen. Vom Infinity-Swimmingpool bis hin zu den privaten Pools auf den Balkonen ausgewählter Einheiten finden Sie viele Möglichkeiten, sich zu entspannen und zu verjüngen. Der voll ausgestattete Fitnessraum und das Fitnesscenter bieten den perfekten Raum, um aktiv und gesund zu bleiben, während die Spa- und Saunaeinrichtungen einen ruhigen Rückzugsort für ultimative Entspannung bieten.

Für diejenigen, die sich nach Freizeitaktivitäten sehnen, bietet die Wohnung einen Kinosaal, einen Billardraum und eine Minigolfanlage für endlose Unterhaltung. Kinder werden sich über die Spielplätze und Familiengärten freuen, während die Bewohner die Schönheit der angelegten Gärten und Spazierwege genießen können. Die Dachterrasse und die Sonnenliegen sind der ideale Ort, um den atemberaubenden Blick auf die Umgebung zu genießen.

Komfort wird bei Natuzzi Harmony Residences groß geschrieben: 24 Stunden am Tag, 7 Tage die Woche Sicherheits- und Concierge-Dienste, überdachte und intelligente Parksysteme sowie Co-Working-Spaces für diejenigen, die von zu Hause aus arbeiten. Einzelhandelsgeschäfte, Restaurants und ein Einkaufszentrum innerhalb der Gemeinde sorgen dafür, dass alles, was Sie brauchen, nur einen Katzensprung entfernt ist.

Auf der zentralen Insel Dubai Islands gelegen, haben die Bewohner Zugang zu einem Privatstrand, neun Yachthäfen für Wasseraktivitäten, Golfplätzen, einem Tennisclub und Reitplätzen in der Nähe. Parks, Grünflächen und Radwege bieten viele Möglichkeiten, die Natur zu genießen. Die Nähe zu den wichtigsten Autobahnen, dem Stadtzentrum von Dubai, internationalen Flughäfen, Schulen, Krankenhäusern und kulturellen Zentren macht dieses Apartment mit einem Schlafzimmer zur idealen Wahl für alle, die einen luxuriösen und bequemen Lebensstil suchen.

WeiterlesenWeniger anzeigen
Balkon
Ja
Ausstattung
Gehoben
Dusche
Ja
Bidet
Ja
Einbauküche
Ja
Klimatisiert
Ja
Personenaufzug
Ja
Garten
Ja

Lage

Dieses exklusive Viertel auf Dubai Island bietet einen luxuriösen und pulsierenden Lebensstil im Herzen von Dubai. Die Bewohner finden alles, was sie für den täglichen Bedarf brauchen, in unmittelbarer Nähe: Supermärkte, Arztpraxen und Apotheken sind in der Nähe.

Für Familien mit kleinen Kindern gibt es in der Nähe erstklassige Bildungseinrichtungen wie Kindertagesstätten, Grundschulen, weiterführende Schulen und renommierte Universitäten.

Was die Freizeitgestaltung betrifft, so können die Bewohner das pulsierende Stadtzentrum genießen und die verschiedenen Unterhaltungsmöglichkeiten in der Umgebung erkunden. Die pulsierende Stadt Dubai ist nur einen Katzensprung entfernt und bietet endlose Möglichkeiten zum Einkaufen, Essengehen und für kulturelle Erlebnisse.

Die nächstgelegene Bushaltestelle und die Autobahnauffahrt befinden sich in unmittelbarer Nähe, so dass Sie leicht in die Stadt und in die Umgebung gelangen können. Dubai Island bietet so viele Annehmlichkeiten, Annehmlichkeiten und Unterhaltungsmöglichkeiten, dass es der perfekte Ort für diejenigen ist, die das Beste des städtischen Lebens erleben möchten.

WeiterlesenWeniger anzeigen

Ähnliche Immobilien

Partnerobjekt von

DVRC REAL ESTATE L.L.C

In nur 1 Minute
 zum ersten Finanzierungsangebot

Kaufpreis
553.562 €
ID: Natuzzi Harmony 1BHK APT-DV-8902

Sie wünschen mehr Informationen? Jetzt ein Exposé anfragen!