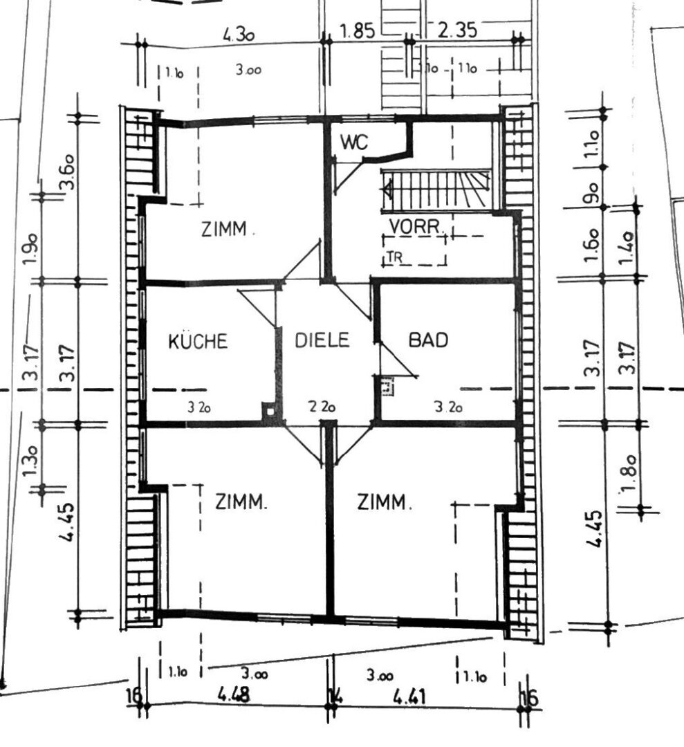
Willkommen in Ihrem neuen Zuhause oder Renditeobjekt! Dieses charmante Fachwerkhaus, ein Mehrfamilienhaus mit 5 Wohneinheiten, bietet eine großartige Investitionsmöglichkeit oder den perfekten Ort für eine Großfamilie. Mit insgesamt 10 Zimmern, 5 Schlafzimmern und 5 Bädern auf 243 m² Wohnfläche bietet dieses Anwesen viel Platz und Komfort. Zusätzlich stehen 2 Garagen und viel Stauraum im großen Nebengebäude zur Verfügung, da eine Unterkellerung fehlt.
Das Haus befindet sich in der idyllischen Gemeinde Kirchheim am Neckar, wo Ruhe und Stadtnähe perfekt harmonieren. Das Grundstück umfasst 402 m², was zusätzlichen Außenbereich für Entspannung und Aktivitäten bietet.
Die letzte Modernisierung fand 2026 statt, wobei die Fassade frisch gedämmt und renoviert wurde. Die Innenausstattung aus dem Jahr 2016 ist praktisch und funktional, perfekt für Mieter oder zum Selbstbewohnen. Die Gas-Zentralheizung, ebenfalls aus dem Jahr 2016, gewährleistet eine effiziente und kostengünstige Wärmeversorgung.
Wichtig für Investoren:
Unmöbliert kann das Haus im Durchschnitt für 10,57 Euro pro Quadratmeter vermietet werden, sodass eine Gesamtmiete von ca. 2.568 Euro erreicht werden kann. Somit kann sich eine Mietrendite in Höhe von 4,97% ergeben. Das Potenzial steigt deutlich an, sobald Sie die kleineren Wohnungen möbliert anbieten.
Entdecken Sie die Vorteile dieses vollständig renovierten Fachwerkhauses und genießen Sie die Kombination aus historischem Charme und modernem Komfort.



