Willkommen in Ihrem neuen Investment: ein charmantes Mehrfamilienhaus mit 3 Parteien in einer ruhigen Anliegerstraße. Dieses Objekt bietet nicht nur eine ideale Lage für Kapitalanleger, sondern auch eine hohe Wohnqualität für zukünftige Mieter. Am Rande von Böblingen-Dietzenhalde mit viel Grün und einer kinderfreundlichen Umgebung, ist dieses Mehrfamilienhaus perfekt für Familien, junge Paare oder Wohngemeinschaften, die ein harmonisches und entspanntes Wohnumfeld suchen. Die hohe Mietnachfrage sichert langfristige Mieteinnahmen in dieser Top-Lage!
Kurz für Sie zusammengefasst:
Investitionsvorteile & Besonderheiten
✔ Attraktive Mietrendite von über 5 %
✔ Laufend modernisiert – kein Sanierungsstau
✔ Langfristige Mietverhältnisse mit Staffelmiete im EG
✔ Sonder-AfA von 2,7 % – steuerliche Vorteile
✔ Erträge aus der Photovoltaikanlage mit 8,7 kwp (Mieterstrom zum Marktpreis von 36 ct/kWh)
✔ Vier Einbauküchen & möblierte WG-Zimmer inklusive
✔ Eine Garage optional (separates Grundbuch): 18 m2: zzgl. 25.000 €
Diese Immobilie wurde regelmäßig modernisiert, um den Wohnkomfort zu erhöhen, die Energieeffizienz zu verbessern und rentable Mieteinnahmen zu garantieren.
Modernisierungsmaßnahmen:
• 2008: Ausbau der Dachgaube
• 2010: Neue Küche im Dachgeschoss
• 2015: Treppenhausanstrich
• 2016: Neue Fernheizung & Photovoltaikanlage mit Fronius-Wechselrichter
• 2020: Renovierung des Kellers, neue Fliesen im Erdgeschoss, neue Küche im EG
• 2021: Austausch der Haustüre & Klingelanlage
• 2022: Fassadenerneuerung
• 2023: Balkonerneuerung (OG & DG), Sanierung des Wintergartens
• 2024: Sanierung der Erdgeschosswohnung
• 2025: Bad-Erneuerung in der OG-Wohnung
Diese kontinuierlichen Maßnahmen sichern Ihnen eine wartungsarme Kapitalanlage mit stabilem Mietfluss.
Aufteilung:
- EG-Wohnung: ca. 90 m² Wohnfläche, zzgl. Terrasse & ca. 40 m² Garten (freiwerdend in 2026)
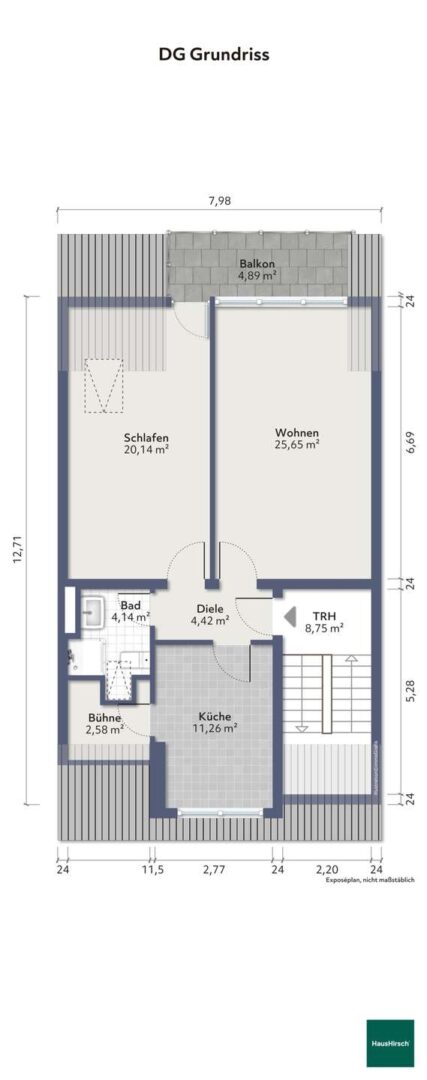
- DG-Wohnung: ca. 76 m² Wohnfläche, Balkon
- OG-Wohnung: ca. 49 m² Wohnfläche, Balkon
- UG: 2 ausgebaute Räume, Heizungsraum, Gemeinschaftswaschraum, Kellerraum
Interessant für Sie? Gerne geben wir Ihnen weiterführende Informationen und bieten Ihnen einen individuellen Besichtigungstermin an.



