In exzellenter zentraler Lage präsentieren sich diese beiden Wohn- und Geschäftshäuser als attraktive Investitionsmöglichkeit für Kapitalanleger.
Mit ihrem Entwicklungspotential bieten sie die Möglichkeit, langfristig eine hohe Rendite zu generieren und den Wert der Immobilien zu steigern.
Die Lage sorgt für eine hohe Nachfrage sowohl bei potenziellen Mietern als auch bei Geschäftspartnern.
Aufgrund der aktuellen sukzessiven Sanierung/Renovierung dieser Immobilie liegt das Steigerungspotential aktuell bei ca. 70.000 €, somit käme man bei einer regulären Vollvermietung auf ca. 120.000 € Netto-Mieteinnahmen per Anno.
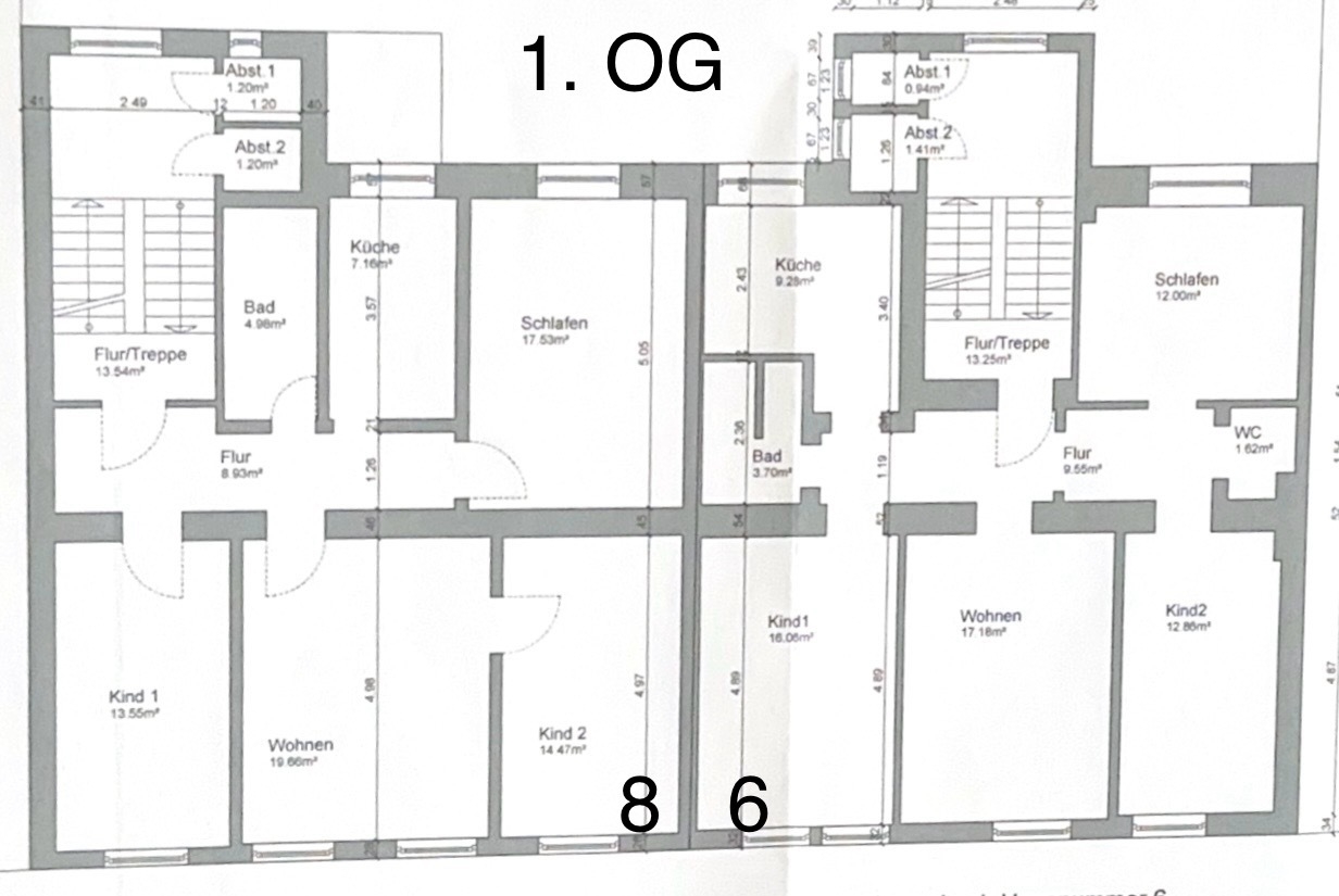
Die Ausstattungsmerkmale wie optimaler Aufteilung , großzügige Flächen und hochwertige aber auch alte Materialien machen diese Objekte zu einer spannenden Investitionsmöglichkeit.



