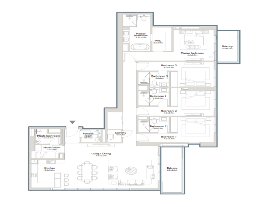
Willkommen in dieser atemberaubenden Wohnung mit vier Schlafzimmern, perfekt für Familien und Investoren gleichermaßen. Mit einer freundlichen Umgebung und einer geräumigen Küche bietet diese Immobilie die ideale Kombination aus Komfort und Bequemlichkeit. Die offene Gestaltung der Küche ist perfekt für die Zubereitung von Familienmahlzeiten oder die Bewirtung von Gästen, während die vier Schlafzimmer ausreichend Platz für alle zum Entspannen und Erholen bieten. Lassen Sie sich die Gelegenheit nicht entgehen, diese schöne Wohnung Ihr neues Zuhause oder Ihr Anlageobjekt zu nennen!



