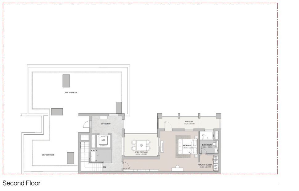
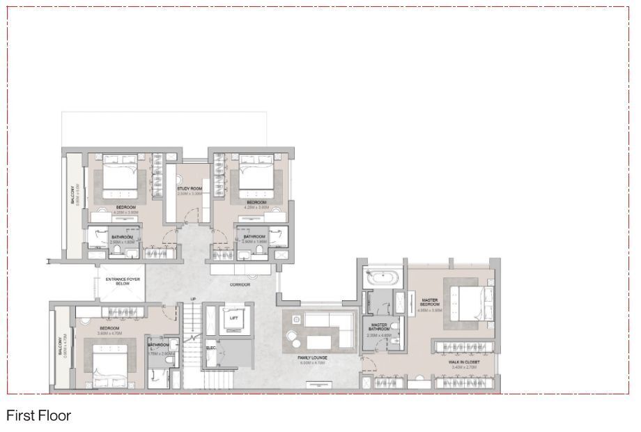
Willkommen zu dieser exklusiven Immobilie für Kapitalanleger und Familien! Diese beeindruckende 6 Schlafzimmer Villa bietet eine luxuriöse Ausstattung, die jeden anspruchsvollen Käufer begeistern wird. Genießen Sie erholsame Tage am Pool und entspannen Sie in der freistehenden Badewanne, die einen Hauch von Eleganz in das Badezimmer bringt. Diese Immobilie verspricht nicht nur eine attraktive Rendite für Investoren, sondern auch ein komfortables Zuhause für Familien. Erleben Sie den Luxus und die Eleganz dieser einzigartigen Villa, die Ihre Erwartungen übertreffen wird.



