Menu
Wohnung
Fire Icon10

Komplett möblierte 3-Zimmer-Wohnung im Studio One Tower, Dubai Marina – Luxus pur!

Kaufpreis 510.000 €
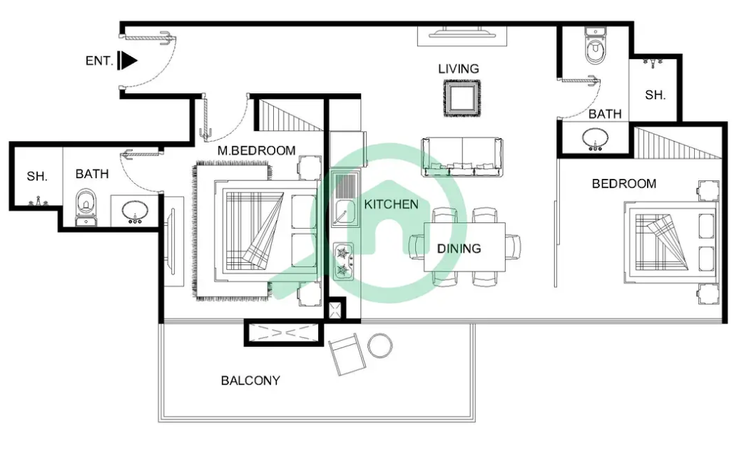
Wohnfläche
ca. 77,30 m²
Anzahl Zimmer
3
Anzahl Schlafzimmer
2
Anzahl Badezimmer
3
Anzahl Balkon / Terrasse
1

Objektbeschreibung

Willkommen im exklusiven Studio One Tower in der renommierten Dubai Marina! Diese komplett möblierte 3-Zimmer-Wohnung bietet eine Premium-Lage und ist ideal für Familien, Kapitalanleger und Paare, die das luxuriöse Lebensgefühl Dubais erleben möchten. Mit hochmoderner Ausstattung, atemberaubender Aussicht und erstklassiger Einrichtung lädt dieses Apartment dazu ein, Ihren Aufenthalt in Dubai unvergesslich zu machen. Tauchen Sie ein in den Luxus und den Komfort, den diese Wohnung zu bieten hat. Willkommen zu Ihrem neuen Zuhause in der aufregenden Stadt Dubai!

WeiterlesenWeniger anzeigen

Ausstattung

Willkommen in Ihrer neuen 3-Zimmer-Wohnung im Studio One Tower, Dubai Marina. Das im Jahr 2019 fertiggestellte Gebäude bietet allen Bewohnern exklusive Annehmlichkeiten wie einen Fitnessraum, einen Swimmingpool, eine Sauna und ein Dampfbad.

Schon beim Betreten Ihres neuen Zuhauses werden Sie den erstklassigen Wohnkomfort spüren. Die elegant gestalteten Einheiten verfügen über bodentiefe Fenster, die für helle Räume sorgen und einen atemberaubenden Blick auf die Marina bieten.

Die hocheffizienten Grundrisse maximieren den verfügbaren Platz in der Wohnung, sodass Sie in jedem Raum ein Gefühl von Großzügigkeit erfahren. Die Küche ist mit modernsten Geräten ausgestattet und lädt zum Kochen und Entspannen ein.

Das geräumige Wohnzimmer bietet genug Platz für gemeinsame Abende mit Freunden oder ruhige Stunden alleine. Die beiden Schlafzimmer sind gemütlich eingerichtet und bieten ausreichend Stauraum für Ihre persönlichen Gegenstände.

Genießen Sie die Annehmlichkeiten des Studio One Tower und lassen Sie sich von der luxuriösen Atmosphäre verzaubern. Willkommen Zuhause.

WeiterlesenWeniger anzeigen
Balkon
Ja
Einbauküche
Ja
Personenaufzug
Ja
Pool
Ja
Abstellraum
Ja
Gäste WC
Ja

Lage

Die Stadt Dubai ist ein pulsierendes Zentrum, das für seine exklusiven Immobilien und luxuriösen Lebensstil bekannt ist. Inmitten dieses urbanen Paradieses liegt Dubai Marina, ein Stadtteil, der für sein modernes Design, spektakuläre Architektur und atemberaubende Aussichten auf den Arabischen Golf geschätzt wird.

In der Nachbarschaft von Dubai Marina finden Sie alle Annehmlichkeiten des täglichen Bedarfs wie Supermärkte, Ärzte und Apotheken, die nur einen kurzen Spaziergang entfernt sind. Für Familien mit Kindern bietet die Umgebung eine exzellente Auswahl an Bildungseinrichtungen, darunter Kitas, Grundschulen, weiterführende Schulen und renommierte Universitäten.

Für die Freizeitgestaltung ist Dubai Marina ideal gelegen, mit einer Vielzahl von Restaurants, Cafés, Einkaufszentren und Unterhaltungsmöglichkeiten in unmittelbarer Nähe. Das Stadtzentrum von Dubai und die Metropole Abu Dhabi sind ebenfalls gut erreichbar.

Die Anbindung an öffentliche Verkehrsmittel ist hervorragend, mit verschiedenen Haltestellen und Autobahnauffahrten in der Nähe, die es einfach machen, sich in der Stadt zu bewegen und die Umgebung zu erk

WeiterlesenWeniger anzeigen

Immobilienfinanzierung berechnen

Berechnen Sie Ihre individuellen Finanzierungskonditionen

Ähnliche Immobilien

Partnerobjekt von

DVRC REAL ESTATE L.L.C

In nur 1 Minute
 zum ersten Finanzierungsangebot

Kaufpreis
510.000 €

Dario Caporali

Exposé anfordern
ID: HA2411778

Sie wünschen mehr Informationen? Jetzt ein Exposé anfragen!