Menu
Haus
Fire Icon3

Luxuriöse Villa mit 5 Schlafzimmern, Dachterrasse und Insellage in traumhafter Umgebung

Kaufpreis 4.334.300 €
Wohnfläche
ca. 671 m²
Nutzfläche
ca. 671 m²
Anzahl Zimmer
10
Anzahl Schlafzimmer
5
Anzahl Badezimmer
8
Anzahl Balkon / Terrasse
1

Objektbeschreibung

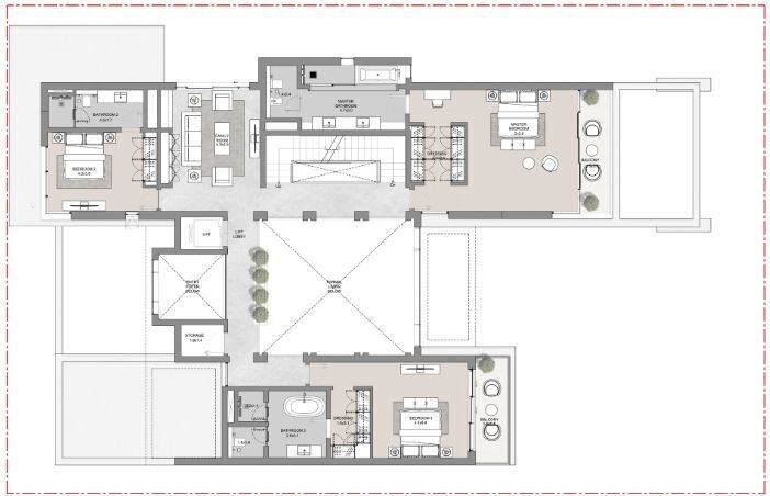
Willkommen in Ihrer Traumimmobilie! Diese beeindruckende 5-Schlafzimmer-Villa begeistert nicht nur Kapitalanleger, sondern auch Familien auf der Suche nach einem Renditeobjekt. Das Highlight dieser Luxusresidenz ist zweifellos der atemberaubende Infinity-Pool, der einen spektakulären Blick auf die umliegende Landschaft bietet. Die großzügige Doppelgarage sorgt für ausreichend Platz für Ihre Fahrzeuge und bietet zusätzlichen Komfort. Diese Villa vereint Luxus und Funktionalität und ist perfekt für Investoren und Familien, die höchste Ansprüche haben. Willkommen zu Ihrem neuen Zuhause!

WeiterlesenWeniger anzeigen

Ausstattung

Willkommen in dieser atemberaubenden 5 Schlafzimmer-Villa, die Ihnen luxuriöses Wohnen in exklusiver Lage bietet. Beim Betreten des Hauses werden Sie sofort von dem riesigen Wohn- und Essbereich beeindruckt sein, der durch die doppelte Deckenhöhe und die Eckverglasung ein helles und offenes Ambiente schafft. Der Fliesenboden und die elegante Treppe mit Glasgeländer führen Sie zu den oberen Etagen, wo Sie Zugang zu einer Dachterrasse mit Blick auf das türkisfarbene Meer haben.

In dieser Villa finden Sie eine Showküche mit separatem Vorbereitungsraum, in dem Sie köstliche Mahlzeiten zubereiten können. Die Terrassenschiebetüren führen Sie zu einem privaten Strand, der nur wenige Schritte entfernt liegt. Genießen Sie den Luxus einer Doppelgarage, eines Maids Room und eines Aufzugs, der Sie bequem zu den verschiedenen Etagen bringt.

Das Hauptbad verfügt über ein Doppelwaschbecken und moderne Armaturen. Eingebaute Schränke im gesamten Haus bieten ausreichend Stauraum für Ihre persönlichen Gegenstände. Der Abstellraum sorgt dafür, dass alles seinen Platz hat und ordentlich verstaut werden kann. Die riesige U-Treppe mit Glasgeländer ist ein echter Blickfang und verleiht dem Haus eine elegante Note.

Diese Villa bietet Ihnen ein Höchstmaß an Komfort, Luxus und Eleganz. Verpassen Sie nicht die Gelegenheit, in diesem exklusiven Anwesen zu leben und das Beste aus Küstenwohnen zu erleben.

WeiterlesenWeniger anzeigen
Balkon
Ja
Einbauküche
Ja
Personenaufzug
Ja
Garten
Ja
Barrierefrei
Ja
Pool
Ja
Abstellraum
Ja
Gäste WC
Ja

Lage

Der Stadtteil Al Seanneeah in Umm Al Quwain bietet ein exklusives Wohngefühl mit einer Vielzahl von Attraktionen in der Nachbarschaft. Nur wenige Minuten entfernt befindet sich Sobha Siniya Island, ein traumhaftes Gebiet, das Luxus und Natur perfekt verbindet. Hier finden Sie exklusive Villen, Herrenhäuser, Apartments und Resorts, die von üppigen Mangroven und traumhaften Stränden umgeben sind.

Im Alltag finden Sie in der Nähe alles, was Sie brauchen. Supermärkte, Ärzte und Apotheken sind leicht zu erreichen und sorgen für eine unkomplizierte Versorgung im täglichen Leben. In Sachen Bildung stehen Kitas, Grundschulen, weiterführende Schulen und Universitäten in der Umgebung zur Verfügung, um eine optimale Ausbildung zu gewährleisten.

Für die Freizeitgestaltung bietet Al Seanneeah zahlreiche Möglichkeiten. Entdecken Sie das nahegelegene Zentrum oder besuchen Sie die umliegenden Städte. Mit einem Golfplatz, einem Yachthafen und einem privaten Strand in der Nähe kommen auch Sport- und Strandliebhaber voll auf ihre Kosten.

Die Anbindung ist ebenfalls hervorragend. Die nächste Haltestelle und Autobahnauffahrt sind gut erreichbar und bieten eine gute Verbindung zu anderen Teilen der Stadt und darüber hinaus. Willkommen in Al Seanneeah, wo Luxus, Natur und Lebensqualität Hand in Hand gehen.

WeiterlesenWeniger anzeigen

Immobilienfinanzierung berechnen

Berechnen Sie Ihre individuellen Finanzierungskonditionen

Ähnliche Immobilien

Keine ähnlichen Immobilien gefunden.

Partnerobjekt von

DVRC REAL ESTATE L.L.C

In nur 1 Minute
 zum ersten Finanzierungsangebot

Kaufpreis
4.334.300 €
ID: Shiniya_Islands_CBV283

Sie wünschen mehr Informationen? Jetzt ein Exposé anfragen!