Menu
Renditeobjekt
Fire Icon9

6 Wohneinheiten & Eiscafé & Büro-Einheit | ca. 6,0 % Soll-Rendite | Zentrum von Ahrweiler

Kaufpreis 1.450.000 €
Wohnfläche
ca. 364,30 m²
Nutzfläche
ca. 102 m²
Gesamtfläche
ca. 559,81 m²
Balkon-/Terrassenbereich
ca. 37,62 m²
Anzahl Zimmer
12
Anzahl der Schlafzimmer
8
Anzahl Badezimmer
7
Anzahl Balkone/Terrassen
4
Anzahl Terrassen
1
Anzahl Wohneinheiten
6
Anzahl Gewerbeeinheiten
2
Baujahr
1980
Letzte Modernisierung
2026

Objektbeschreibung

Kapitalanlage mit Substanz, Perspektive und klarer Positionierung: Dieses Mehrparteienhaus in absoluter Bestlage von Bad Neuenahr-Ahrweiler verbindet eine außergewöhnliche Lage in der Fußgängerzone mit attraktiven Entwicklungsmöglichkeiten. Nur wenige Schritte vom Marktplatz entfernt und eingebettet in das lebendige Zentrum, entsteht hier ein Investment, das sowohl von Frequenz als auch von nachhaltiger Nachfrage profitiert.

Nach der Flutkatastrophe 2021 wurden das Gebäude bis Januar 2026 in wesentlichen Bereichen bereits umfassend saniert. Weitere Einheiten (nicht vom Hochwasser betroffen) befinden sich in den finalen Ausbauphasen oder bieten bewusst Raum für individuelle Fertigstellung. Für Investoren ergibt sich hier eine seltene Kombination aus bereits geschaffener Substanz und gezieltem Wertsteigerungspotenzial.

WeiterlesenWeniger anzeigen

Ausstattung

Das teilweise vermietete Gebäude vereint eine attraktive Mischung aus Wohn- und Gewerbeflächen und schafft damit eine belastbare Grundlage für eine breit diversifizierte Vermietungsstrategie mit sofortigem Ertrag und zusätzlichem Entwicklungspotenzial.

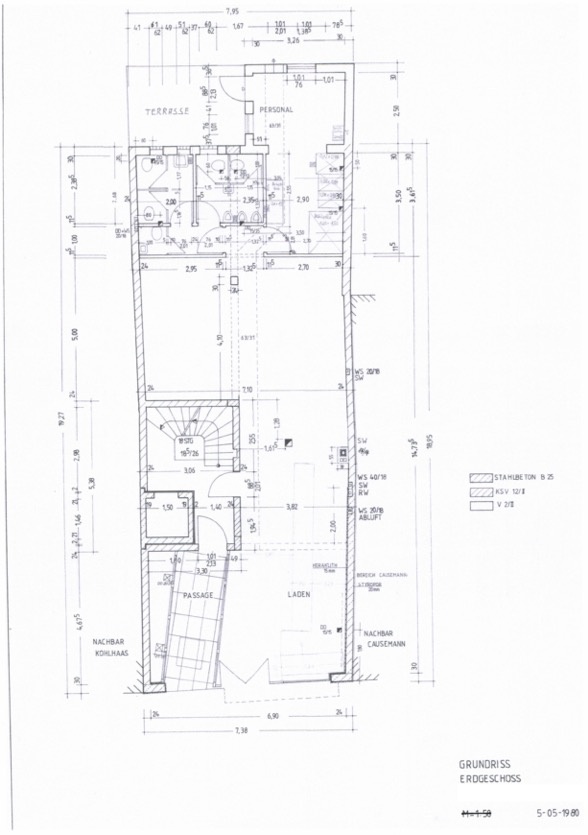
Im Erdgeschoss befindet sich eine ca. 112 m² große Gewerbeeinheit, zuletzt als Eiscafé genutzt. Eine Wiedervermietung als Eiscafé ist ab April/Mai vorgesehen – zeitgleich mit der Fertigstellung der Fußgängerzone und der damit einhergehenden deutlichen Frequenzsteigerung.

Im Zuge der Hochwassersanierung wurde diese Einheit vollständig und hochwertig neu aufgebaut: Sämtliche Elektro- und Sanitärinstallationen wurden erneuert, ebenso alle Fenster und Türen in Aluminium. Zwei Automatiktüren (Assa Abloy) sorgen für eine einladende Zugangssituation. Ergänzt wird dies durch ein vollständig ausgestattetes Eislabor sowie neue Sanitäranlagen. Für einen wirtschaftlichen Betrieb sorgt eine neue Gasheizung mit 300-Liter-Wasserspeicher und integrierter Wärmepumpe zur Wärmerückgewinnung.

Der großzügige Gastraum mit Außenterrasse, Lagerflächen im Keller sowie ein neu gestalteter, überdachter Außenbereich mit zusätzlicher Außentreppe bieten ideale Voraussetzungen für ein nachhaltiges Gastronomiekonzept.

Die darüberliegenden Etagen gliedern sich wie folgt:
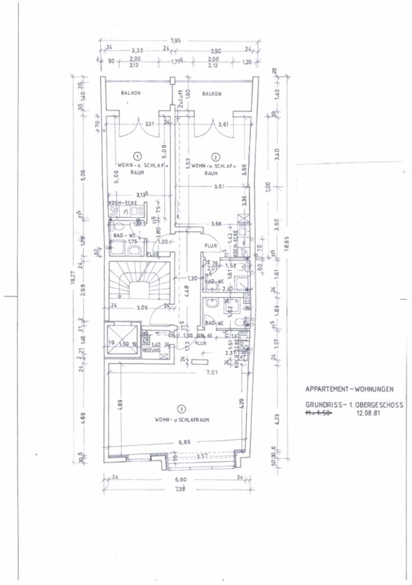
1. Obergeschoss:
Drei Apartments (ca. 28,20 m² | 31,28 m² | 43,56 m²), jeweils mit Balkon
→ ein Apartment vermietet, ein Apartment eigengenutzt, ein Apartment leerstehend (Modernisierung in den finalen Zügen)

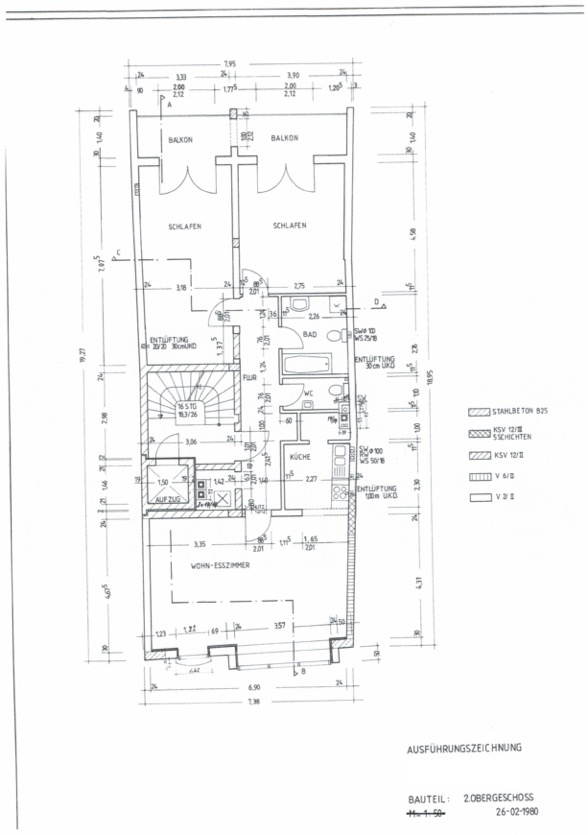
2. Obergeschoss:
4-Zimmer-Wohnung, ca. 107,16 m², Balkon
→ leerstehend, Fertigstellung inkl. Küche kurzfristig vorgesehen

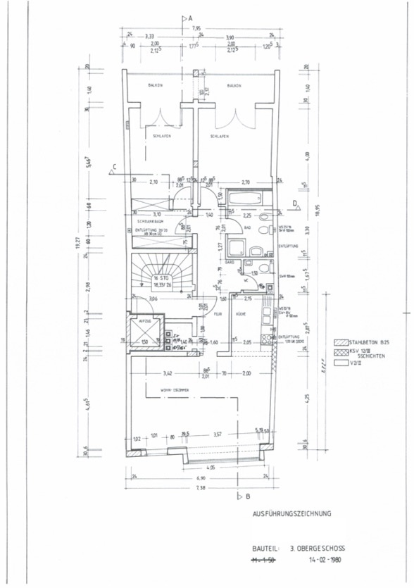
3. Obergeschoss:
3-Zimmer-Wohnung, ca. 107,30 m², Balkon
→ leerstehend, Ausbauzustand, individuelle Fertigstellung durch Käufer möglich

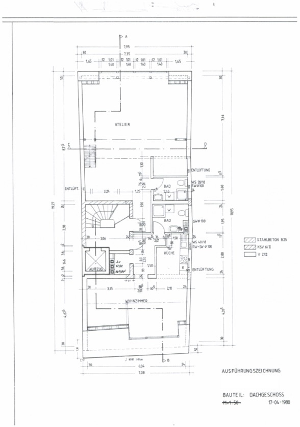
4. Obergeschoss:
Maisonette-Apartment (ca. 45,21 m²)
→ vermietet
sowie Gewerbe-/Büroeinheit (ca. 83,27 m²) mit ca. 5,05 m Deckenhöhe und zusätzlicher Ebene
→ eigengenutzt

Aus Rücksicht auf die Privatsphäre der Mieter sind nicht alle Einheiten bildlich dargestellt; insbesondere liegen für das Apartment im 4. Obergeschoss derzeit keine Innenaufnahmen vor.

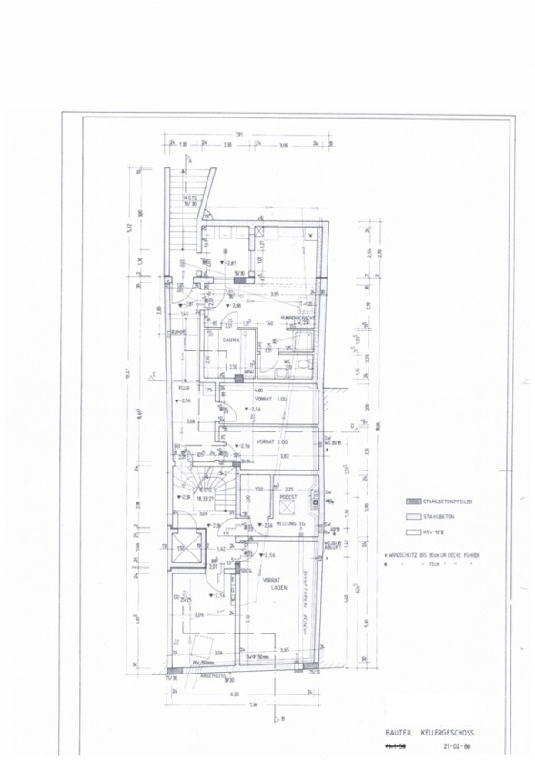
Das Gebäude ist vollständig unterkellert, jeder Einheit ist ein separater Abstellraum zugeordnet.

Bis Unterkante erstes Obergeschoss wurden Erd- und Kellergeschoss bis März 2026 vollständig saniert. In diesem Zuge wurden neben sämtlichen Leitungen und Oberflächen auch die straßenseitige Fassade neu gestaltet. Das Treppenhaus erhielt im unteren Bereich einen neuen Steinbelag sowie wandseitige Verfliesungen. Der Aufzug wurde technisch vollständig erneuert, ergänzt durch einen automatischen Rauchabzug. Der Garten wird aktuell neu angelegt.

Ertragskennzahlen:
- Jahresnettokaltmiete (Soll): ca. 87.000 €
- Kaufpreis: 1.450.000 €
- Soll-Rendite: ca. 6,0 %

Ausstattung & Technik (Auszug):
- Doppelverglaste Holzfenster (Wohnen), Aluminiumfenster im Gewerbe
- Gas-Etagenheizungen (2005 / 2020), Gewerbeeinheit mit neuer Heiztechnik (2025) inkl. Wärmepumpe und 300-Liter-Warmwasserspeicher
- Energieeffizienzklasse B (61,4 kWh/m²a)
- Hochwassersanierung vollständig abgeschlossen
- Aufzug inkl. Technik und Steuerung erneuert

Die Immobilie bietet eine seltene Kombination aus bereits geschaffener Substanz, kurzfristig realisierbaren Mieteinnahmen und gezieltem Wertsteigerungspotenzial durch Leerstände und Ausbaureserven.

WeiterlesenWeniger anzeigen
Balkon
Ja
Einbauküche
Ja
Kamin
Ja
Personenaufzug
Ja
Garten
Ja
Abstellraum
Ja
Dusche
Ja
Fliesen
Ja
Kunststoff
Ja

Energieeffizienzklasse

A+
A
B
C
D
E
F
G
H

Energie & Heizung

Baujahr1980
EnergieausweisVerfügbar
Energie­ausweistypVerbrauchsausweis
Erstellt am08.03.2021
Gültig bis07.03.2031
Endenergieverbrauch61,40 kWh/(m²·a)
Mit WarmwasserJa
PrimärenergieträgerGas
Energieeffizienz KlasseB
HeizungsartEtagenheizung

Lage

Die Immobilie liegt in absolut zentraler Bestlage – mitten in der Fußgängerzone von Bad Neuenahr-Ahrweiler, nur etwa 50 Meter vom Marktplatz entfernt. Für Pendler bietet die Lage eine hervorragende Anbindung: Die Autobahnen A61 und A565 sind in kurzer Zeit erreichbar und ermöglichen eine zügige Verbindung in Richtung Bonn, Köln und Koblenz. Auch der öffentliche Nahverkehr ist optimal ausgebaut – der Bahnhof Bad Neuenahr ist fußläufig erreichbar und bietet regelmäßige Verbindungen in die umliegenden Städte.

Für Familien überzeugt die Umgebung durch eine gewachsene Infrastruktur: Kindergärten, Kitas sowie Grund- und weiterführende Schulen befinden sich im nahen Umfeld und sind größtenteils bequem zu Fuß oder mit dem Fahrrad erreichbar. Die Kombination aus urbanem Leben und kurzen Wegen schafft hier eine besonders alltagstaugliche Wohnqualität.

Die Nahversorgung ist exzellent: Supermärkte, Bäckereien, Apotheken und Ärzte befinden sich in unmittelbarer Umgebung und sind bequem fußläufig erreichbar. Darüber hinaus profitiert die Lage von einer außergewöhnlich hohen gastronomischen Dichte – geprägt durch zahlreiche Straußwirtschaften, Vinotheken und inhabergeführte Gastronomiebetriebe regionaler Winzer. Diese sorgen ganzjährig für eine konstante Besucherfrequenz sowie zusätzliche touristische Nachfrage. Gerade für die im Objekt befindliche Gastronomieeinheit stellt dieses Umfeld einen klaren Standortvorteil dar und unterstützt nachhaltig eine stabile Vermietbarkeit sowie attraktive Mietansätze.

Ein besonderes Highlight ist das Freizeitangebot: Die umliegenden Weinberge, nur wenige Gehminuten entfernt, laden zu ausgedehnten Spaziergängen, Wanderungen und Weinproben ein. Die Region ist bekannt für ihre hohe Lebensqualität – geprägt von Natur, Weinbau und einer Vielzahl an kulturellen Veranstaltungen. Ob für Erholungssuchende, Sportbegeisterte oder Weinliebhaber – diese Lage bietet eine außergewöhnliche Kombination aus Lebensqualität und touristischer Attraktivität.

WeiterlesenWeniger anzeigen

Immobilienfinanzierung berechnen

Berechnen Sie Ihre individuellen Finanzierungskonditionen

Ähnliche Immobilien

In nur 1 Minute
 zum ersten Finanzierungsangebot

Kaufpreis
1.450.000 €
Provisionspflichtig
Ja
Käuferprovision
5.95%
Mieteinnahmen (Soll)
87.000 €
Sandra Wonsack

Sandra Wonsack

Exposé anfordern
ID: HA241253956

Sie wünschen mehr Informationen? Jetzt ein Exposé anfragen!