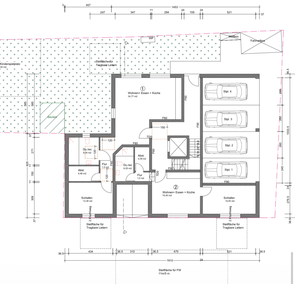
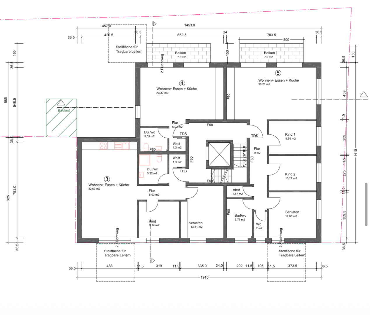
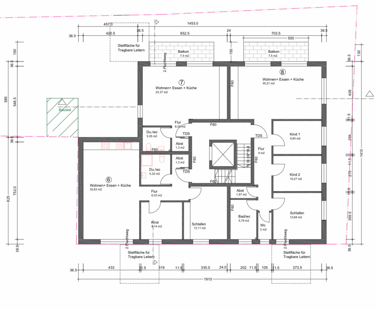
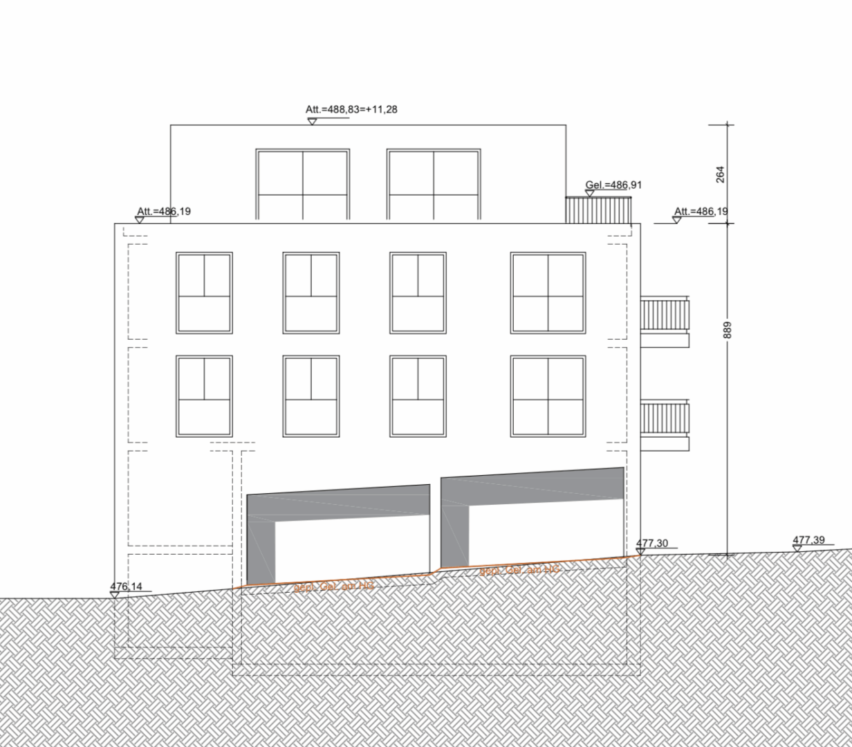
Entdecken Sie dieses beeindruckende Anwesen in Weil im Schönbuch, das eine seltene Gelegenheit für Investoren und Familien gleichermaßen darstellt. Dieses großzügige Grundstück mit einer Fläche von 454 m² bietet ein einzigartiges Potenzial für vielfältige Nutzungsmöglichkeiten.
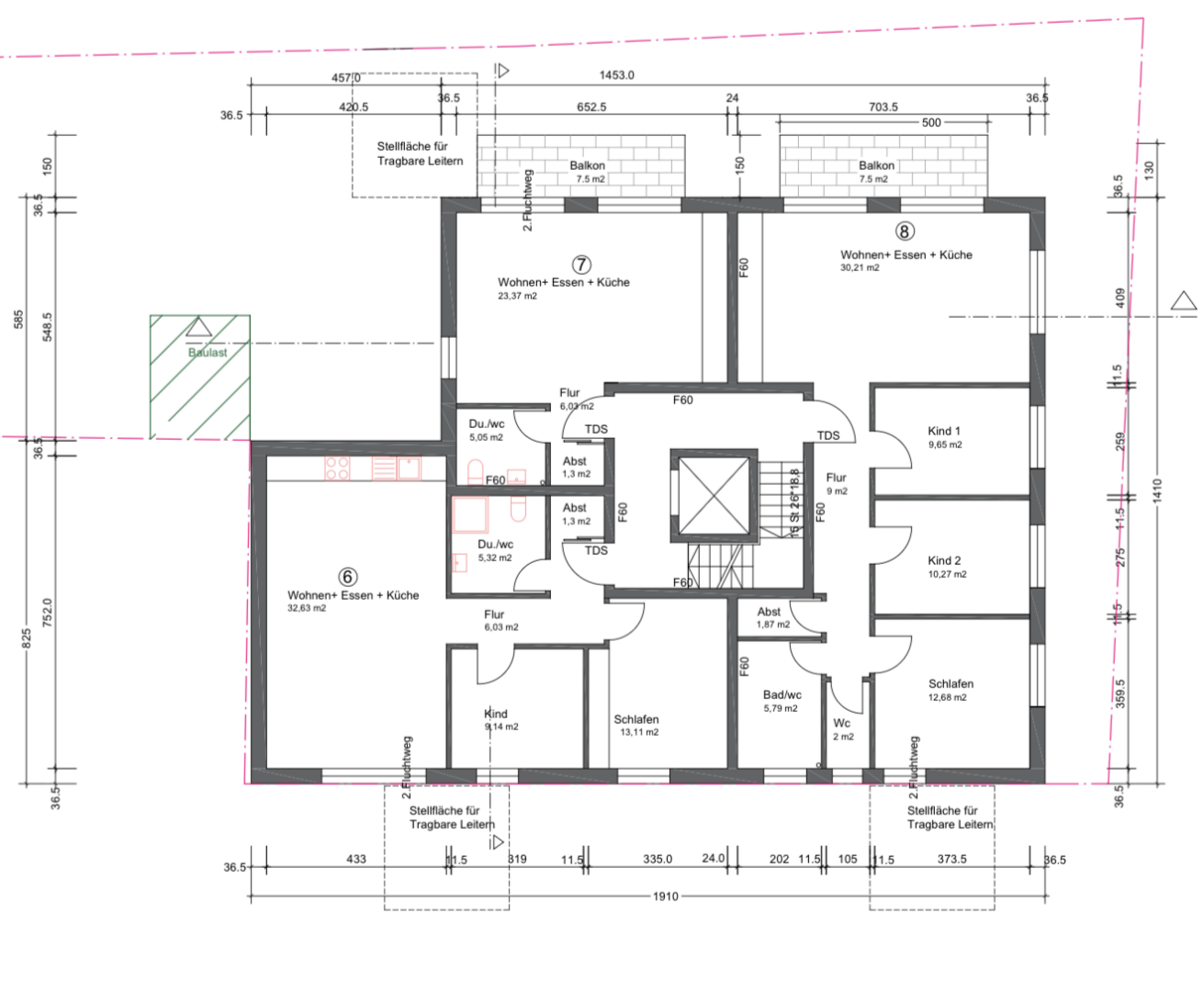
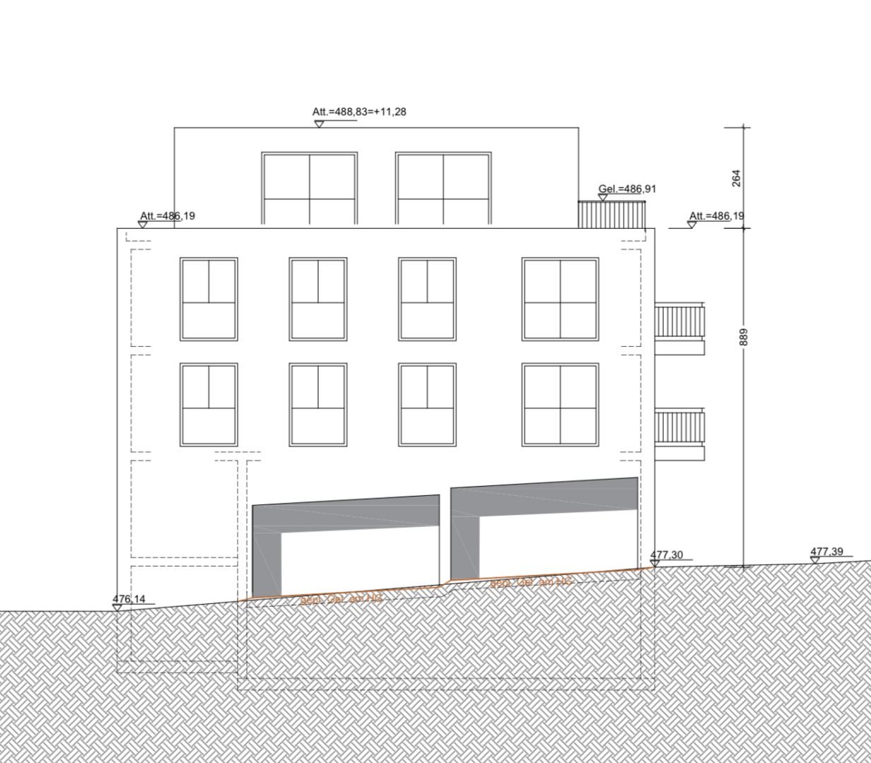
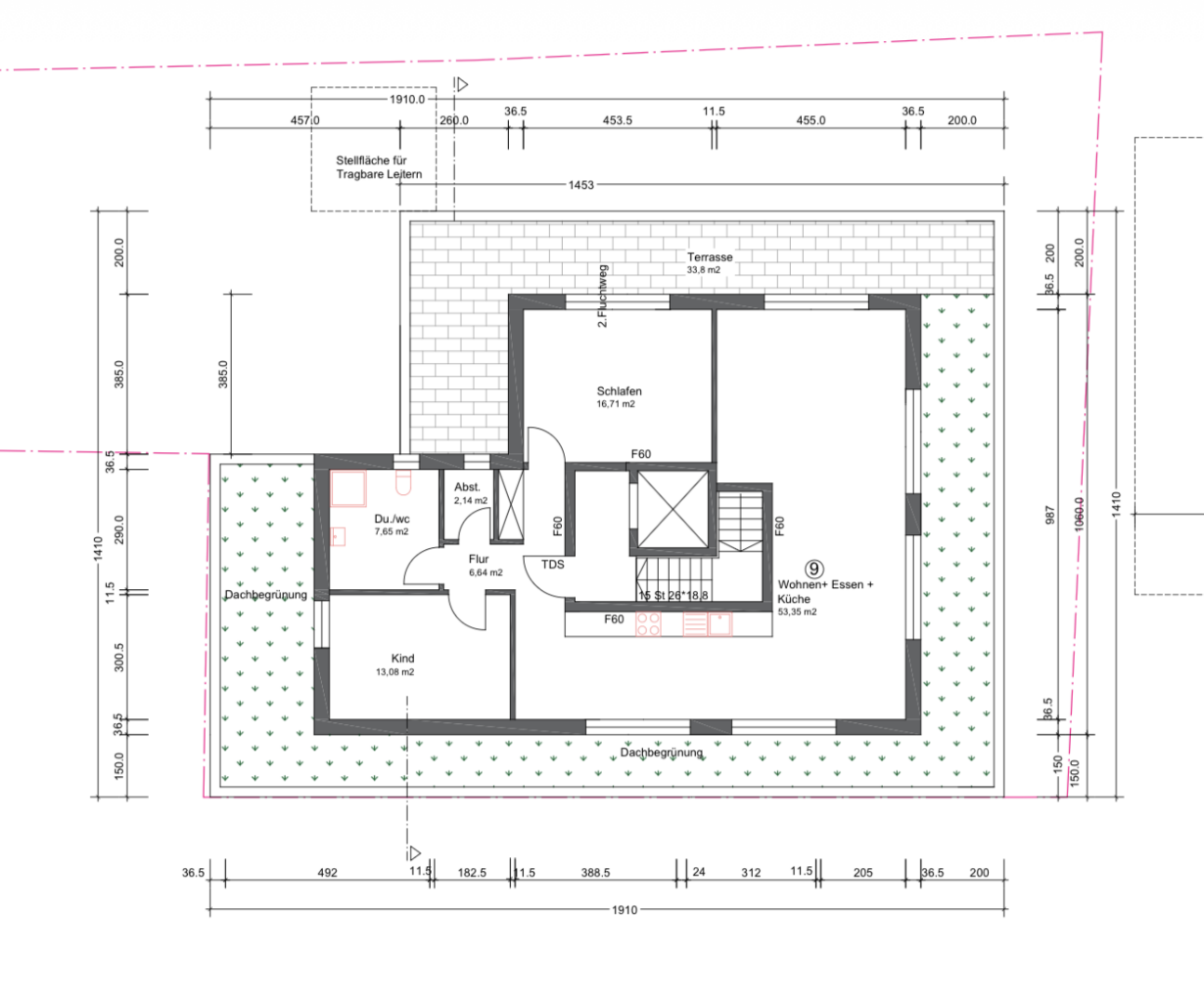
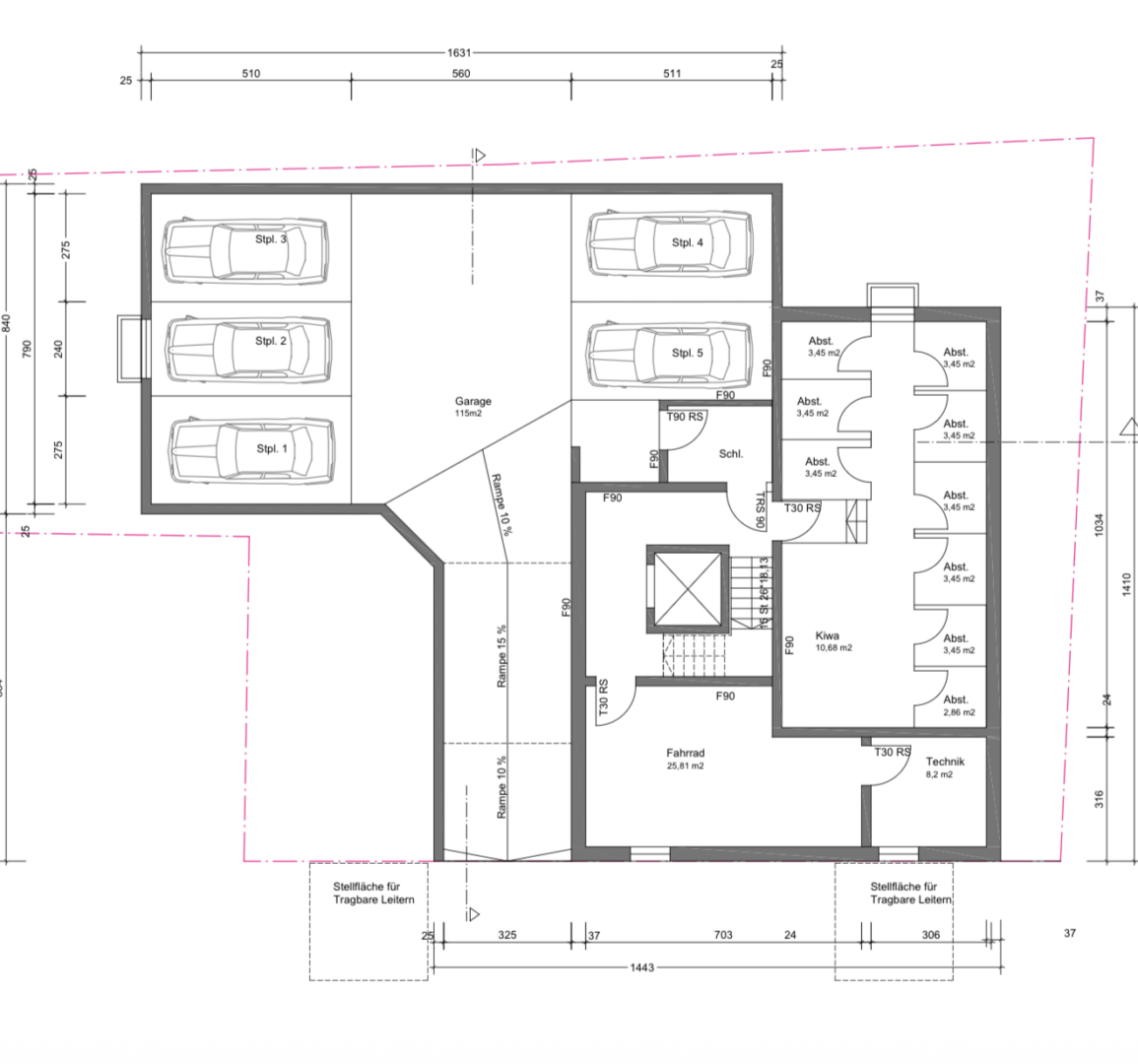
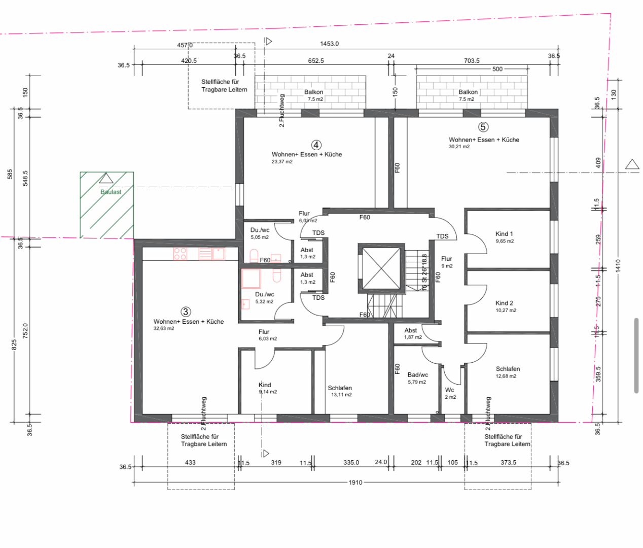
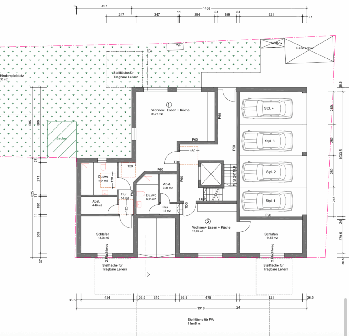
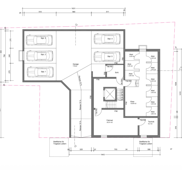
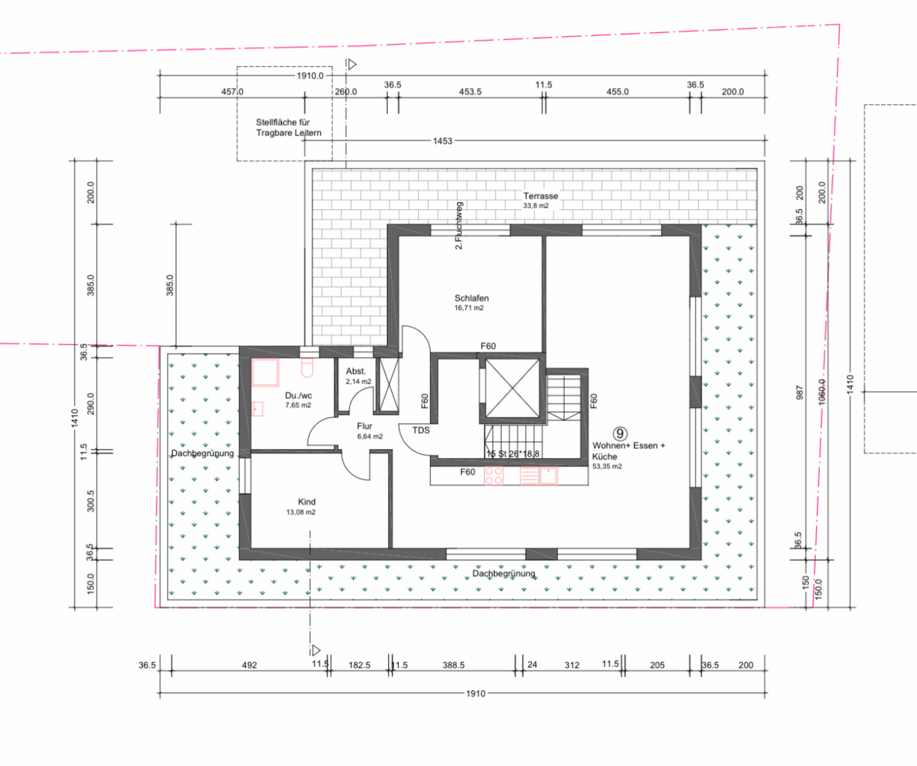
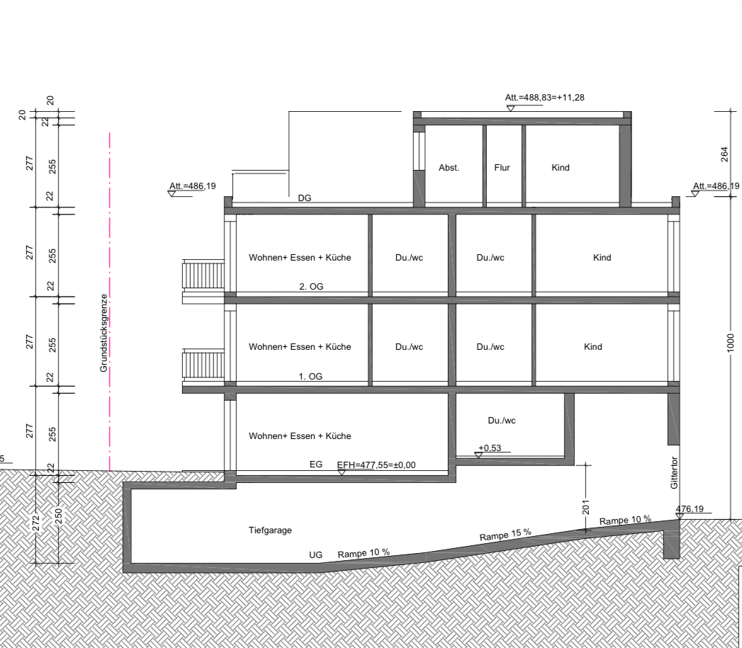
Das Objekt umfasst insgesamt 23 Zimmer, verteilt auf drei Etagen, und bietet somit ausreichend Platz für eine große Familie oder mehrere Wohneinheiten. Die Aufteilung der Räume ermöglicht eine flexible Nutzung, sei es für private Wohnräume, Büros oder Gästezimmer.
Das Grundstück selbst ist hervorragend gelegen und bietet eine ruhige und doch zentrale Lage in Weil im Schönbuch. Die umliegende Natur und die Nähe zu Stuttgart machen dieses Anwesen zu einer attraktiven Investition. Die vorhandene Infrastruktur mit Schulen, Einkaufsmöglichkeiten und öffentlichen Verkehrsmitteln in der Nähe gewährleistet einen hohen Komfort für den Alltag.
Die Immobilie wartet darauf, nach Ihren Vorstellungen gestaltet zu werden. Ob Sie eine große Familienresidenz planen, ein Mehrfamilienhaus errichten oder das Grundstück für gewerbliche Zwecke nutzen möchten – hier sind Ihrer Kreativität keine Grenzen gesetzt.
Nutzen Sie diese einzigartige Chance und sichern Sie sich ein Stück Zukunft in einer der begehrtesten Lagen von Weil im Schönbuch. Kontaktieren Sie uns noch heute für weitere Informationen und Besichtigungstermine.



