Menu
Wohnung
Fire Icon12

Attraktive Kapitalanlage in Uhlenhorst – Noch Vermietete 3-Zimmer-Wohnung mit Balkon und Stellplatz

Kaufpreis 545.000 €
Wohnfläche
ca. 68 m²
Gesamtfläche
ca. 68 m²
Anzahl Zimmer
3
Anzahl der Schlafzimmer
2
Anzahl Badezimmer
1
Anzahl Balkone/Terrassen
1
Anzahl Stellplätze
1
Baujahr
1959
Zustand
Modernisiert
Letzte Modernisierung
2022

Objektbeschreibung

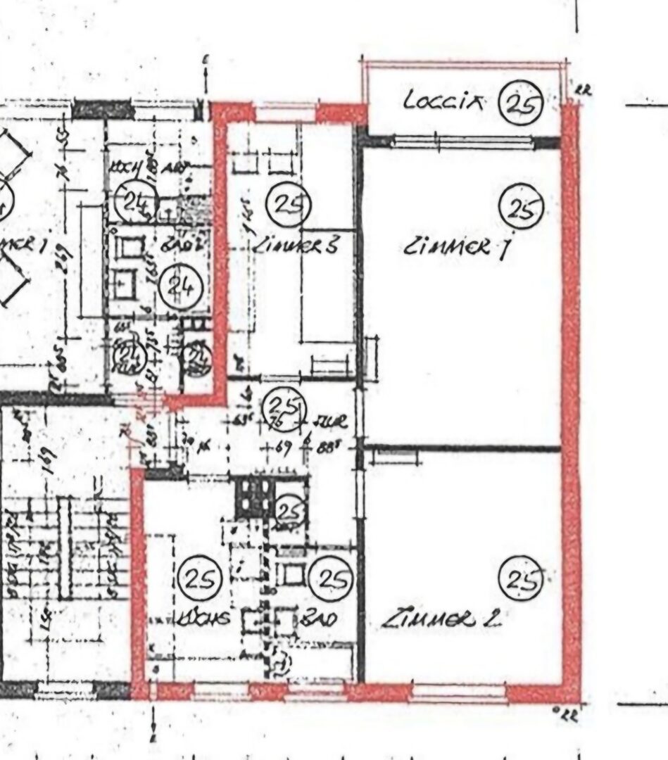
Diese attraktive und hochwertig modernisierte 3-Zimmer-Wohnung befindet sich in begehrter Lage von Hamburg-Uhlenhorst und überzeugt durch ihre ruhige Position in zweiter Reihe sowie eine durchdachte Raumaufteilung.

Auf ca. 68 m² Wohnfläche bietet die Wohnung ein komfortables Zuhause für Paare, kleine Familien oder anspruchsvolle Kapitalanleger. Zwei gut geschnittene Schlafzimmer, ein helles Wohnzimmer mit Zugang zum Balkon sowie ein stilvolles Badezimmer schaffen eine angenehme Wohnatmosphäre mit hohem Wohlfühlfaktor.

Die Wohnung wurde im Rahmen einer Kernsanierung im Jahr 2011 umfassend modernisiert und seitdem kontinuierlich aufgewertet. So wurde 2022 eine neue, hochwertige Einbauküche installiert und die Elektrik vollständig erneuert, wodurch ein zeitgemäßer Wohnstandard gewährleistet ist.

Ein weiteres Plus ist die 2024 durchgeführte Isolierung und Sanierung der Außenfassade, die sowohl den Energieverbrauch reduziert als auch den Wohnkomfort nachhaltig steigert. Der sonnige Balkon mit Blick in den ruhigen Innenhof lädt zum Entspannen ein und bietet einen angenehmen Rückzugsort mitten in der Stadt.

Abgerundet wird dieses attraktive Angebot durch einen eigenen Stellplatz (zzgl. € 30.000,--) sowie einen separaten Kellerraum.

Die Wohnung ist derzeit vermietet (bis 1.5.2027) und bietet somit eine interessante Möglichkeit für Kapitalanleger mit stabilen Mieteinnahmen. Gleichzeitig eignet sich das Objekt auch perspektivisch zur späteren Eigennutzung.

Diese Immobilie kombiniert wertstabile Investmentqualitäten mit erstklassigem Wohnkomfort in begehrter Lage und spricht damit sowohl Eigennutzer als auch Kapitalanleger an.

WeiterlesenWeniger anzeigen

Ausstattung

ca. 68 m² Wohnfläche
3 Zimmer, davon 2 Schlafzimmer
Gestagte Einrichtungsbeispiele
Helles Wohnzimmer mit Balkonzugang
Balkon mit Blick in den ruhigen Innenhof
Neue Einbauküche (2022) mit hochwertigen Geräten
Modernisiertes Vollbad mit Badewanne
Erneuerte Elektrik (2022)
Kernsanierung des Objekts (2011)
Sanierung und Isolierung der Außenfassade 2024
Laminatboden in den Wohnräumen
Separater Kellerraum
Eigener Stellplatz (zzgl. € 30.000,--)
Gepflegter Gesamtzustand

WeiterlesenWeniger anzeigen
Balkon
Ja
Stellplatz
Ja
Ausstattung
Gehoben
Einbauküche
Ja
Parken im Freien
Ja
Garten
Ja
Abstellraum
Ja
Bad mit Badewanne
Ja
Fliesen
Ja
Laminat
Ja

Energieeffizienzklasse

A+
A
B
C
D
E
F
G
H

Energie & Heizung

Baujahr1959
EnergieausweisVerfügbar
Energie­ausweistypVerbrauchsausweis
Erstellt am25.04.2018
Gültig bis24.04.2028
Endenergieverbrauch125 kWh/(m²·a)
Mit Warmwasser
PrimärenergieträgerFERNWäRME
Energieeffizienz KlasseD
HeizungsartFernwärme

Lage

Die Wohnung befindet sich im beliebten Hamburger Stadtteil Uhlenhorst, nur wenige Minuten von der Alster entfernt. Die Umgebung zeichnet sich durch eine hervorragende Infrastruktur mit zahlreichen Einkaufsmöglichkeiten, Cafés, Restaurants sowie Schulen und Kitas aus.

Die Innenstadt ist in kurzer Zeit erreichbar, ebenso wie öffentliche Verkehrsmittel, die eine optimale Anbindung gewährleisten. Die Kombination aus zentraler Lage und ruhigem Wohnumfeld macht diese Immobilie besonders attraktiv.

WeiterlesenWeniger anzeigen

Immobilienfinanzierung berechnen

Berechnen Sie Ihre individuellen Finanzierungskonditionen

Ähnliche Immobilien

In nur 1 Minute
 zum ersten Finanzierungsangebot

Kaufpreis
545.000 €
Kaltmiete (netto)
1.440 €
Hausgeld
380 €
Provisionspflichtig
Ja
Käuferprovision
3.57%
Kaufpreis Stellplatz (Garage)
30.000 €
Provisionshinweis
Die angegebene Käuferprovision (inkl. MwSt.) ist verdient und fällig mit Beurkundung des notariellen Kaufvertrages.
Miriam Kerler

Miriam Kerler

Exposé anfordern
ID: HA2626692

Sie wünschen mehr Informationen? Jetzt ein Exposé anfragen!