Dieses moderne und ansprechend gestaltete Mehrfamilienhaus in Merching bietet eine hervorragende Gelegenheit für Investoren, die auf der Suche nach einer renditestarken Immobilie sind.
Mit 5 Wohneinheiten und Wohnflächen zwischen 56 m² und 86,49 m² spricht das Objekt verschiedene Zielgruppen an – von Singles über Paare bis hin zu kleinen Familien. Jede Wohnung verfügt über einen Balkon.
Die zeitlose Architektur verbindet modernes Design mit funktionaler Wohnraumgestaltung. Zusätzliche Ausstattungsmerkmale wie Außenstellplätze, ein Fahrradabstellraum und ein Kinderspielplatz machen das Mehrfamilienhaus besonders attraktiv. Diese durchdachten Details sorgen nicht nur für eine hohe Wohnqualität, sondern steigern auch die langfristige Wertstabilität.
Ausstattung auf höchstem Niveau
Das Gebäude überzeugt durch den Einsatz hochwertiger Materialien und moderner Technik:
• Bodenbeläge: Elegante Parkettböden in den Wohnräumen, großformatige Fliesen in Bädern und WCs.
• Heizung: Individuell regulierbare Fußbodenheizung für optimalen Komfort in allen Räumen.
• Sanitäreinrichtungen: Markenprodukte in den Bädern, bodengleiche Duschen und hochwertige Armaturen sorgen für einen luxuriösen Standard.
• Fenster: Dreifachverglaste Kunststofffenster mit hervorragendem Wärmeschutz.
• Technik: Moderne Video-Gegensprechanlage für Sicherheit und Komfort.
• Zusatzfeatures: Elektrische Rollläden, ausreichend Außenstellplätze und Abstellräume für Fahrräder und Kinderwagen.
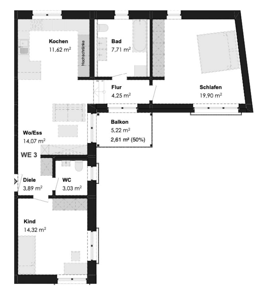
Wohnungsübersicht und Grundrisse
Das Gebäude bietet folgende Einheiten:
Erdgeschoss:
• Wohnung links: 55,68 m²
• Wohnung rechts: 59,42 m²
Obergeschoss:
• Wohnung links: 70,43 m²
• Wohnung rechts: 81,40 m²
Dachgeschoss:
• Dachgeschosswohnung: 75,99 m², mit großzügiger Dachterrasse
Übersicht:
•Wohnfläche gesamt: 55,68 + 59,42 + 70,43 + 81,40 + 75,99 = 342,92 m²
•Mieteinnahmen pro m²: 16 € bis 20 €
•Kaufpreis der Immobilie: 2.100.000 €
Jahreseinnahmen:
•Bei 16 €/m²: 66.867,84 €
•Bei 20 €/m²: 83.584,80 €
Rendite:
•Bei 16 €/m²: 3,18 %
•Bei 20 €/m²: 3,98 %
Die durchdachten Grundrisse und hochwertige Ausstattung machen jede Wohnung zu einem attraktiven Wohnraum für unterschiedliche Zielgruppen.
Fazit: Ihre Investition in eine wertstabile Zukunft
Dieses Mehrfamilienhaus in Merching vereint erstklassige Wohnqualität, moderne Architektur und eine hervorragende Lage. Es bietet Investoren eine lukrative Gelegenheit, von langfristiger Wertsteigerung und stabilen Mieteinnahmen zu profitieren. Die hochwertigen Ausstattungsmerkmale und die attraktive Umgebung machen diese Immobilie zu einer sicheren und renditestarken Kapitalanlage.
Zögern Sie nicht und sichern Sie sich diese seltene Gelegenheit. Kontaktieren Sie uns für weitere Informationen oder zur Vereinbarung eines Besichtigungstermins.



