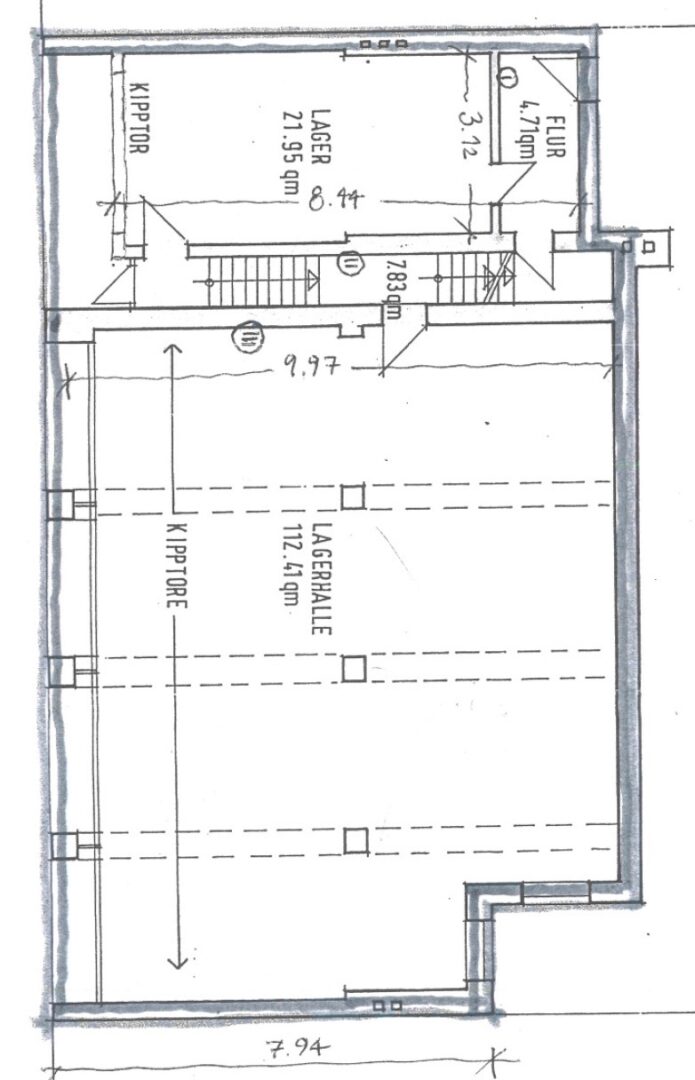
Willkommen zu einer attraktiven Entwicklungsmöglichkeit in bester Hamburger City-Süd-Lage! Dieses Baugrundstück mit Bestandsgebäude bietet Investoren und Projektentwicklern die Chance, ein interessantes Projekt zu realisieren.
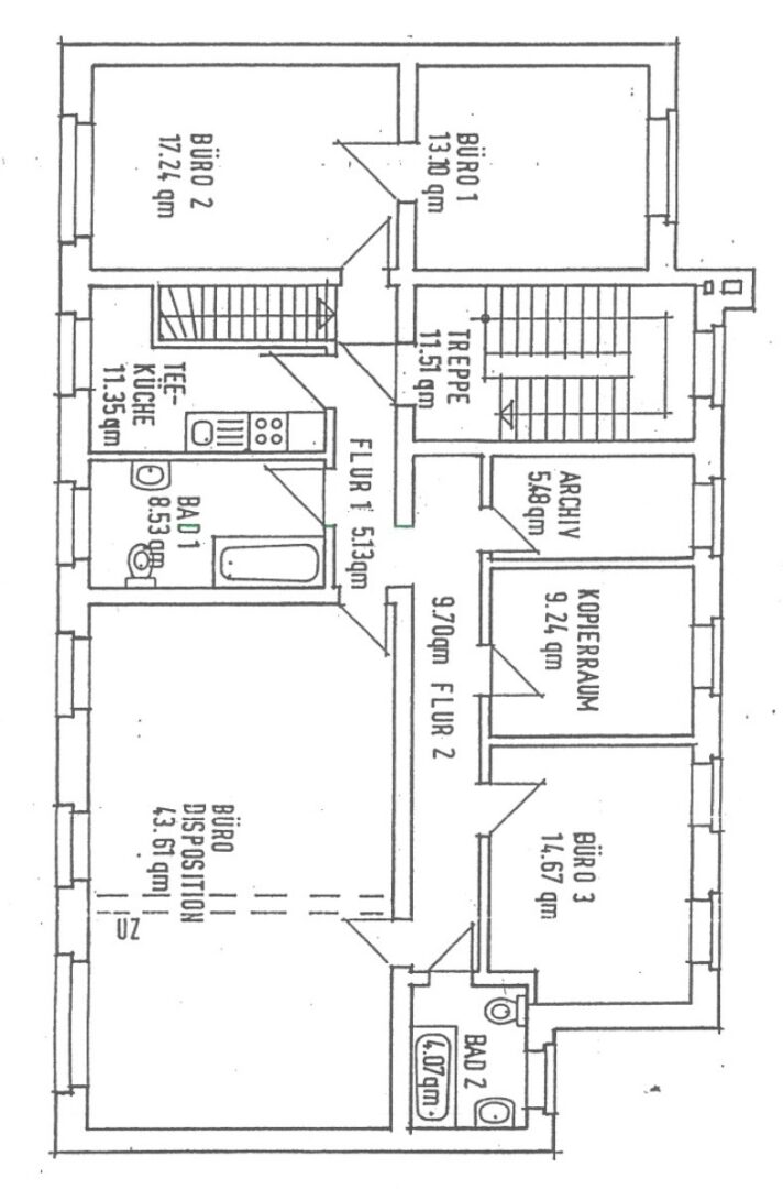
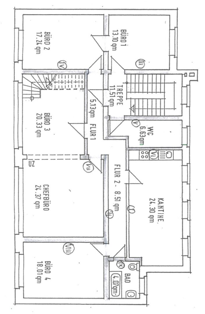
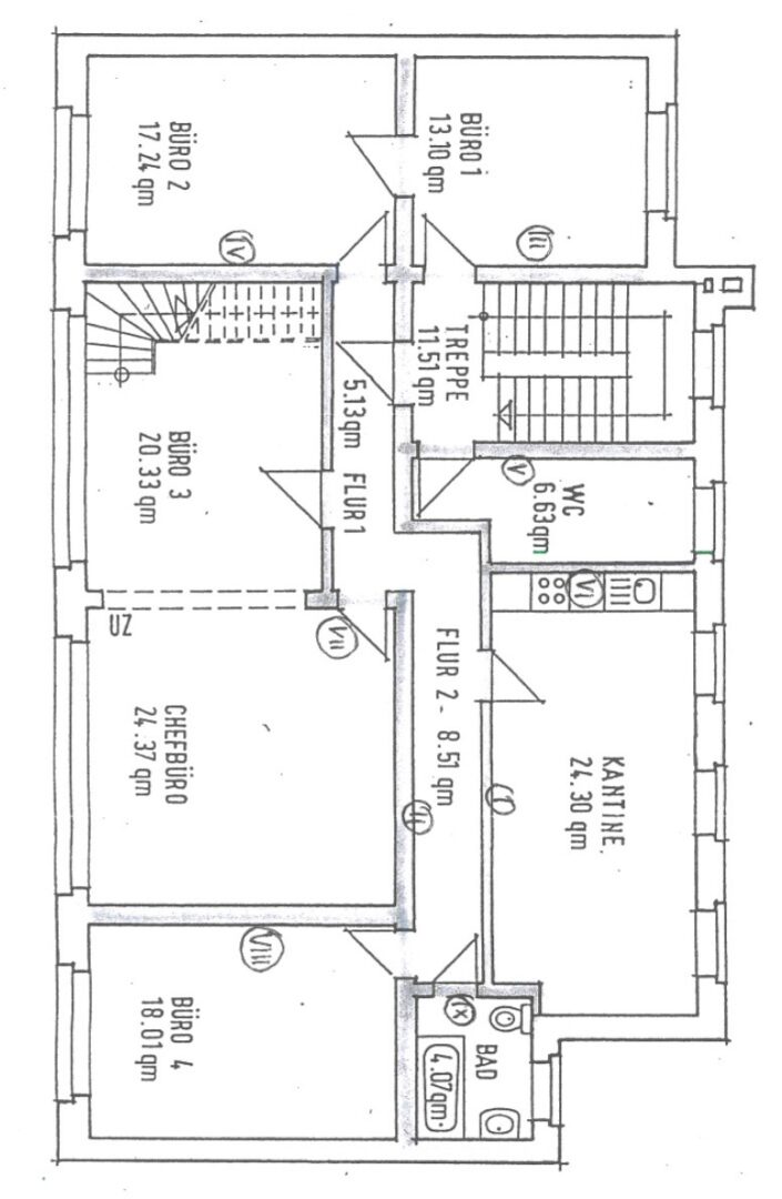
Das Bestandsgebäude ist teilweise modernisiert und kann frei übergeben werden. Die Bebaubarkeit des Grundstücks mit ca. 2.500 qm BGF bietet Ihnen die Gelegenheit, in einer der begehrtesten Lagen Hamburgs zu investieren und Ihr Portfolio zu erweitern.



