Erleben Sie das luxuriöse Leben an der Küste in dieser außergewöhnlichen 4-Schlafzimmer-Wohnung nur wenige Schritte vom Yachthafen in S'Arenal, Mallorca. Diese atemberaubende Wohnung befindet sich im 6. Stock mit Zugang zum Aufzug und bietet sowohl einen Panoramablick auf das Meer als auch eine hochwertige Ausstattung, nachdem sie im Jahr 2025 komplett von Grund auf renoviert wurde.
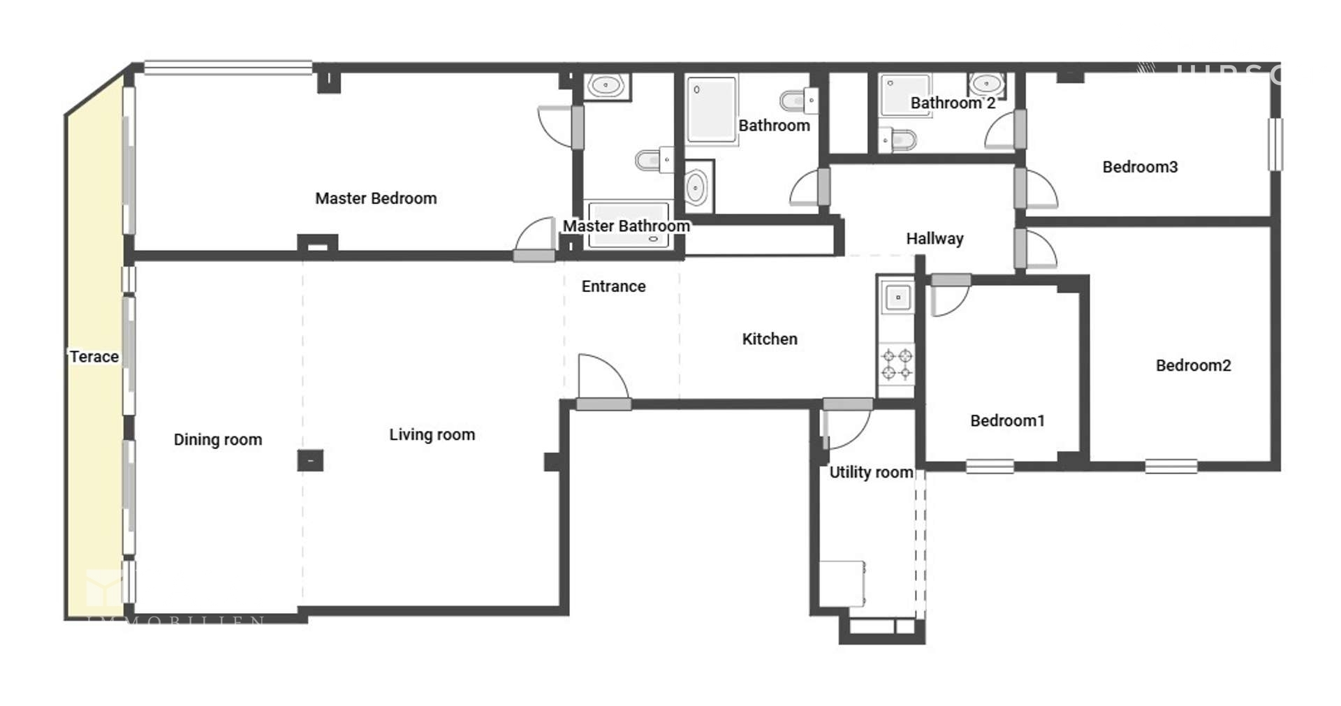
Mit einer bebauten Gesamtfläche von 160 m² und 142 m² nutzbarer Wohnfläche ist die Wohnung geräumig, hell und so gestaltet, dass sie moderne Eleganz mit mediterranem Komfort verbindet.
Merkmale der Immobilie:
4 Schlafzimmer: darunter ein luxuriöses Hauptschlafzimmer, 2 großzügige Doppelschlafzimmer und 1 Einzelschlafzimmer, ideal für Gäste oder als Büro.
3 elegante Badezimmer, zwei davon en suite, alle mit exquisiten Naturmaterialien und Designer-Armaturen ausgestattet.
Ein heller und offener Wohn- und Essbereich, ideal für Gäste und zum Genießen des natürlichen Lichts, das den Raum durchflutet.
Hochmoderne Küche mit Spitzengeräten, klaren, minimalistischen Linien und einer zentralen Insel, die sich ideal zum Kochen und für gesellige Runden eignet.
Geräumige Terrasse und Essbereich mit teilweisem Meerblick auf den Yachthafen von Arenal und die Küste.
Hohe Decken, integrierte Beleuchtung und luxuriöse Bodenbeläge im gesamten Haus sorgen für ein raffiniertes und harmonisches Interieur.
Dieses Haus wurde vollständig renoviert, wobei nur die hochwertigsten Materialien verwendet wurden, und bietet eine Ausstattung, die in dieser Gegend selten zu finden ist. Es ist sofort bezugsfertig und eignet sich ideal als Hauptwohnsitz, Ferienhaus oder hochwertiges Investitionsobjekt.
WICHTIGER HINWEIS:
Es gibt ein Projekt zur Schaffung einer Außenterrasse von ca. 10 m² durch eine kleine bauliche Veränderung des Essbereichs. Wenn der zukünftige Käufer dies wünscht, wird der Umbau vor der Unterzeichnung beim Notar durchgeführt. Diese Verbesserung ist im Verkaufspreis enthalten, so dass dem Käufer keine zusätzlichen Kosten entstehen.
Auf Anfrage stellen wir Interessenten gerne eine vollständige Aufschlüsselung der Renovierungsarbeiten zur Verfügung, einschließlich einer detaillierten Dokumentation und Fotomaterial - ein klarer Beweis für die Qualität und Sorgfalt, die in diese bemerkenswerte Immobilie investiert wurde.
Kontaktieren Sie uns noch heute, um einen Besichtigungstermin für diese spektakuläre Wohnung zu vereinbaren. Hochwertige Immobilien wie diese sind selten auf dem Markt - verpassen Sie diese Gelegenheit nicht.
![[COVER] Essen-Blick](https://haushirsch.de/wp-content/uploads/77d4dd6b289fc7fdcf09dd362963557a.jpeg)


