Ein Haus, das man sofort nutzen kann und gleichzeitig die Möglichkeit bietet, es Schritt für Schritt nach eigenen Vorstellungen weiterzuentwickeln.
Die Immobilie befindet sich auf einem historischen Schlossareal in Potsdam-Kartzow auf einem eigenen Flurstück und bietet eine besondere Kombination aus ruhiger Lage, großzügigem Raumangebot und individueller Entwicklungsmöglichkeit.
Das Haus ist grundsätzlich bewohnbar und kann auch im aktuellen Zustand genutzt werden.
Gleichzeitig entspricht die vorhandene Ausstattung in Teilen nicht mehr den heutigen gestalterischen und technischen Ansprüchen, sodass sich für viele Käufer der Wunsch ergibt, das Objekt nach und nach zu modernisieren und an die eigenen Vorstellungen anzupassen.
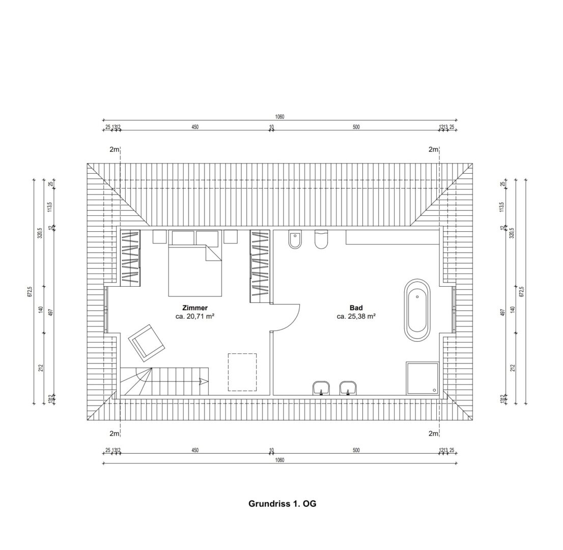
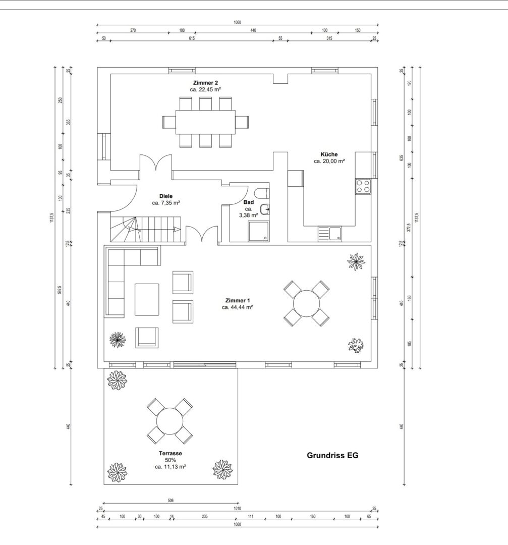
Die Raumstruktur ist offen und weicht von klassischen Einfamilienhaus-Grundrissen ab.
Insbesondere stehen zwei sehr großzügige Wohnbereiche zur Verfügung, während die Anzahl der Schlafzimmer aktuell reduziert ist.
Dies eröffnet individuelle Gestaltungsmöglichkeiten, erfordert jedoch je nach Bedarf auch eine Anpassung der Raumaufteilung.
Die Innenausstattung ist funktional, jedoch optisch teilweise nicht mehr zeitgemäß.
Dadurch ergibt sich die Möglichkeit, mit überschaubarem Aufwand erste Veränderungen vorzunehmen und das Haus schrittweise weiterzuentwickeln.
Die Beheizung erfolgt aktuell über einen wasserführenden Kamin, der die Fußbodenheizung und Heizkörper speist und effizient sowie kostengünstig genutzt werden kann.
Die bestehende Infrastruktur – insbesondere die wasserführenden Leitungen – kann dabei weiterhin genutzt werden.
Der vorhandene Kamin kann bei Bedarf durch eine alternative Lösung, beispielsweise einen Pelletofen oder ein anderes Heizsystem, ersetzt werden.
Nach Rücksprache mit einer Fachfirma bewegt sich der hierfür erforderliche Aufwand je nach gewählter Lösung in einem Rahmen von ca. 5.000 bis 10.000 Euro.
Der Garten wird durch den vorhandenen Pool geprägt, der ein zentrales Element des Grundstücks darstellt.
Je nach Nutzungskonzept kann dieser erhalten oder mit entsprechendem Aufwand zurückgebaut und die Fläche neu gestaltet werden.
Ein besonderer Vorteil:
Das Gebäude steht nicht unter Innendenkmalschutz, sodass im Innenbereich eine weitgehend freie Gestaltung möglich ist.
Gleichzeitig können bestimmte Modernisierungsmaßnahmen – insbesondere im energetischen Bereich – durch Förderprogramme oder steuerliche Vorteile unterstützt werden.
Zur besseren Vorstellung der Nutzungsmöglichkeiten wurden einzelne Bilder im Exposé visualisiert (KI-generiert).
Diese dienen als Einrichtungsideen und zeigen beispielhaft, wie die Räume gestaltet werden könnten.
Dieses Haus eignet sich für Käufer, die:
• kurzfristig einziehen möchten und schrittweise Veränderungen planen
• Freude daran haben, ein Haus nach eigenen Vorstellungen zu entwickeln
• eine besondere Lage und großzügige Flächen zu schätzen wissen
Weniger geeignet ist die Immobilie für Interessenten, die eine vollständig modernisierte und klar strukturierte Standardlösung erwarten.
Ein Haus, das bereits heute nutzbar ist –
und gleichzeitig Raum bietet, es über die Zeit zu einem ganz besonderen persönlichen Zuhause zu machen.



