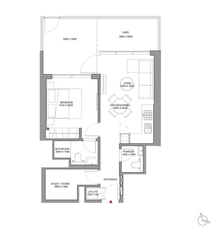
Willkommen zu dieser exquisiten 1-Zimmer-Wohnung mit Abstellraum, die sich ideal für Familien und Investoren eignet. Diese Wohnung bietet großartige Annehmlichkeiten, darunter eine moderne Küche, ein helles und geräumiges Wohnzimmer sowie ein komfortables Schlafzimmer. Der Abstellraum sorgt für zusätzlichen Stauraum, um Ihre persönlichen Gegenstände aufzubewahren. Diese Wohnung ist perfekt für Familien, die nach einem gemütlichen Zuhause suchen, sowie für Investoren, die eine attraktive Rendite suchen. Verpassen Sie nicht die Gelegenheit, diese einzigartige Wohnung zu besichtigen und sich von ihren großartigen Annehmlichkeiten zu überzeugen.



