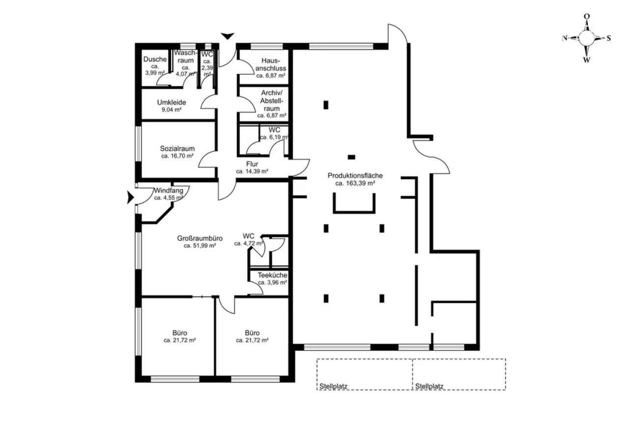
Willkommen in dieser großzügigen Immobilie mit einem repräsentativem Bürobereich und mehreren geräumigen Produktionshallen (insgesamt 3 Teilbereiche mit Kühlräumen), die optimal für Unternehmen, Gastronomie, Produktion und Lagerung geeignet ist. Die Immobilie besticht durch ihre komplette Ausstattung und den gepflegten Zustand. Der Grundriss zeigt nur den ersten Teilbereich - das Büro und die erste Produktionshalle. Es gibt direkt anschliessend noch zwei weitere, ungefähr gleich große und ein weiteres angrenzendes Büro, das aktuell mit einem Hallenbereich vermietet ist.
Neben der großen Produktionsfläche verfügen die Hallen über diverse Nebenräume sowie ein großes Büro, das ausreichend Platz für Ihre Mitarbeiter bietet. Hier haben Sie die Möglichkeit, Ihre Geschäftsideen optimal umzusetzen und Ihr Unternehmen erfolgreich zu führen. Es handelt sich im vorderen Bereich um einen 109 m² großen Bürobereich mit Teeküche und Empfang, dahinter um drei Produktionshallen, alle circa so groß wie die gezeigte, und um einen seitlichen hinteren kleinen Bürobereich (16 qm) mit angrenzender Küche und WC. Hinter dem Gebäude sind weitere Stellplätze.
Entdecken Sie die vielfältigen Möglichkeiten, die Ihnen diese Immobilie bietet, und starten Sie durch in Ihrer neuen Produktionsstätte.



