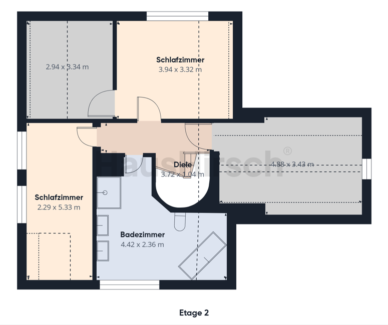
Diese einladende Immobilie bietet alles, was das Herz begehrt für Familien, Kapitalanleger, Singles und alle, die auf der Suche nach einem großzügigen Wohnraum sind. Das gepflegte Zweifamilienhaus verfügt über insgesamt 7,5 Zimmer, 3 Bäder, ein Gäste-WC sowie eine Vollunterkellerung - ideal für Familien, Homeoffice oder Mehrgenerationenwohnen. Im Jahr 1993 neu aufgebaut und 2013 umfassend modernisiert, präsentiert sich die Immobilie in einem gepflegten Zustand mit hochwertiger Ausstattung und Gestaltungsspielraum. Das großzügige Grundstück bietet viel Platz zum Spielen, Entspannen und Gärtnern. Hier kann man sich rundum wohlfühlen und den Komfort eines modernen Wohnhauses in vollen Zügen genießen.
Ergänzend möchten wir darauf hinweisen, dass das Objekt derzeit monatliche Kaltmieteinnahmen in Höhe von 2.060 Euro erzielt. Dies entspricht einer jährlichen Kaltmiete von 24.720 Euro.
Die aktuellen Mieter haben zudem signalisiert, dass sie nach entsprechender Absprache bereit wären, die Wohnungen zu räumen. Somit bietet sich sowohl eine Perspektive für Kapitalanleger als auch für Eigennutzer.



