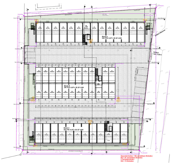
Die moderne Selfstorage Anlage befindet sich in einer erstklassigen Lage und bietet insgesamt 120 Garagen und Lagerboxen. Der Betrieb der Anlage läuft bereits seit 2024 und erfreut sich großer Beliebtheit. Die verkürzte Abschreibungsdauer beträgt 20 Jahre, was einer jährlichen Abschreibung von 5% auf den Gebäudeteil entspricht. Die Verwaltung kann übernommen werden und man könnte eine zweite Anlage in Lüneburg ebenfalls kaufen, Faktor 14.



