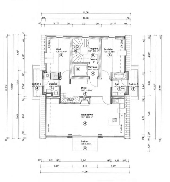
Moderne Erdgeschosswohnung zur Vermietung oder Eigennutzung: Wir präsentieren eine der beiden neu errichteten und hellen Erdgeschosswohnungen in einem fertiggestellten Mehrfamilienhaus.
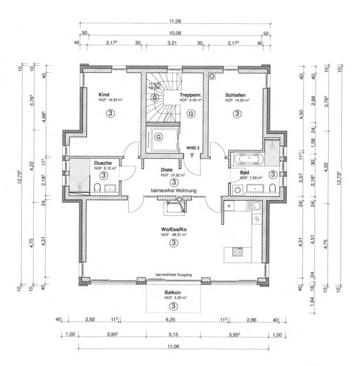
Flexible Grundrisse & Individuelle Fertigstellung: Ein absolutes Highlight dieser Wohnung ist die Möglichkeit zur individuellen Konfiguration durch den Käufer. Noch können die Ausbaumerkmale wie Bodenbeläge, Küche, Bad und Beleuchtung nach persönlichen Wünschen ausgewählt werden. Sogar die Größe der Räume und der Verlauf von Wänden kann in einem gewissen Rahmen noch angepasst werden – gestalten Sie Ihre Kapitalanlage oder Ihr Zuhause im Erdgeschoss ganz nach Maß!
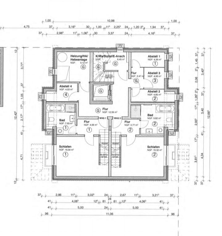
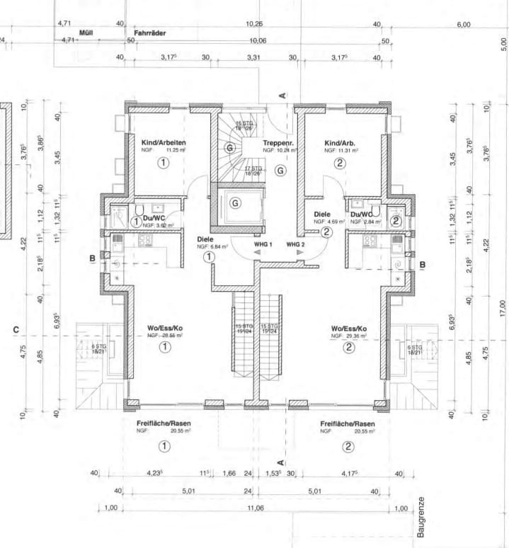
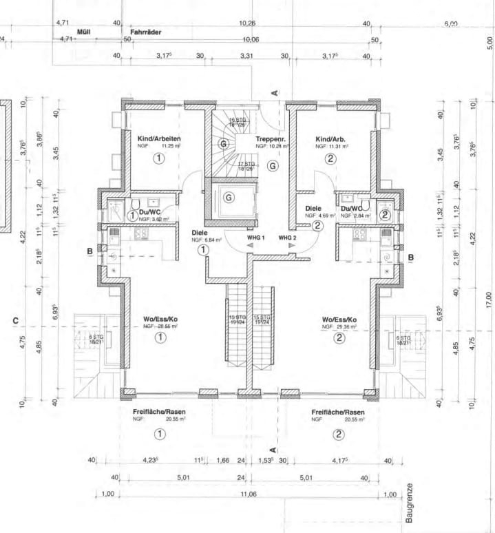
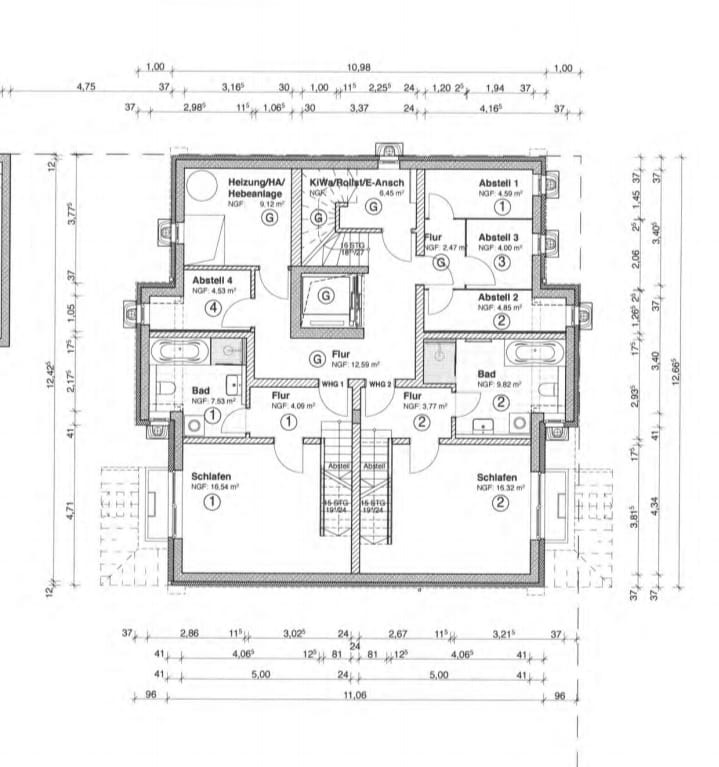
Erdgeschoss: 2 Wohnungen Links und Rechts
- EG, links 79,27 m² Wohnfläche + Garage + Überdachte Stellplatz
- Preis 649.000 € + 36.000 € + 16.000 € = 691.000 €
- EG, rechts 79,54 m² Wohnfläche + Garage + Überdachte Stellplatz
- Preis 649.000 € + 36.000 € + 16.000 € = 691.000 €



