Gemütliche Penthousewohnung mit direktem Meerblick in Colonia Sant Jordi
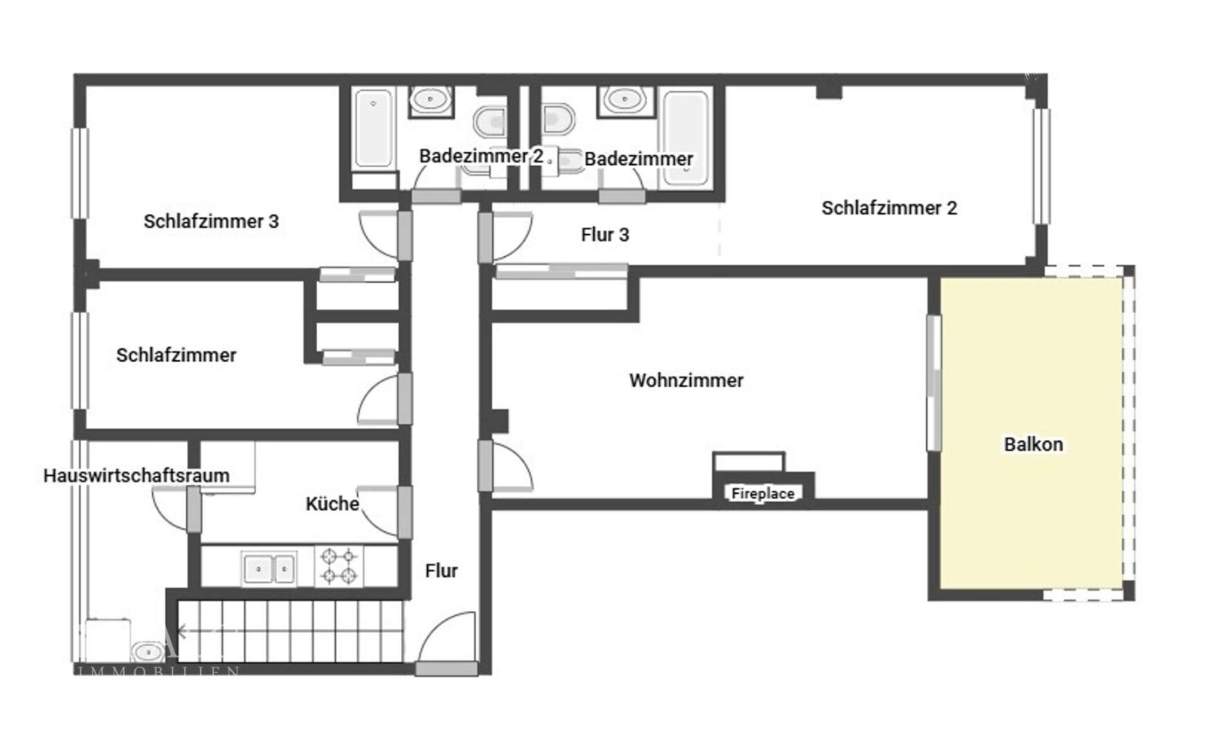
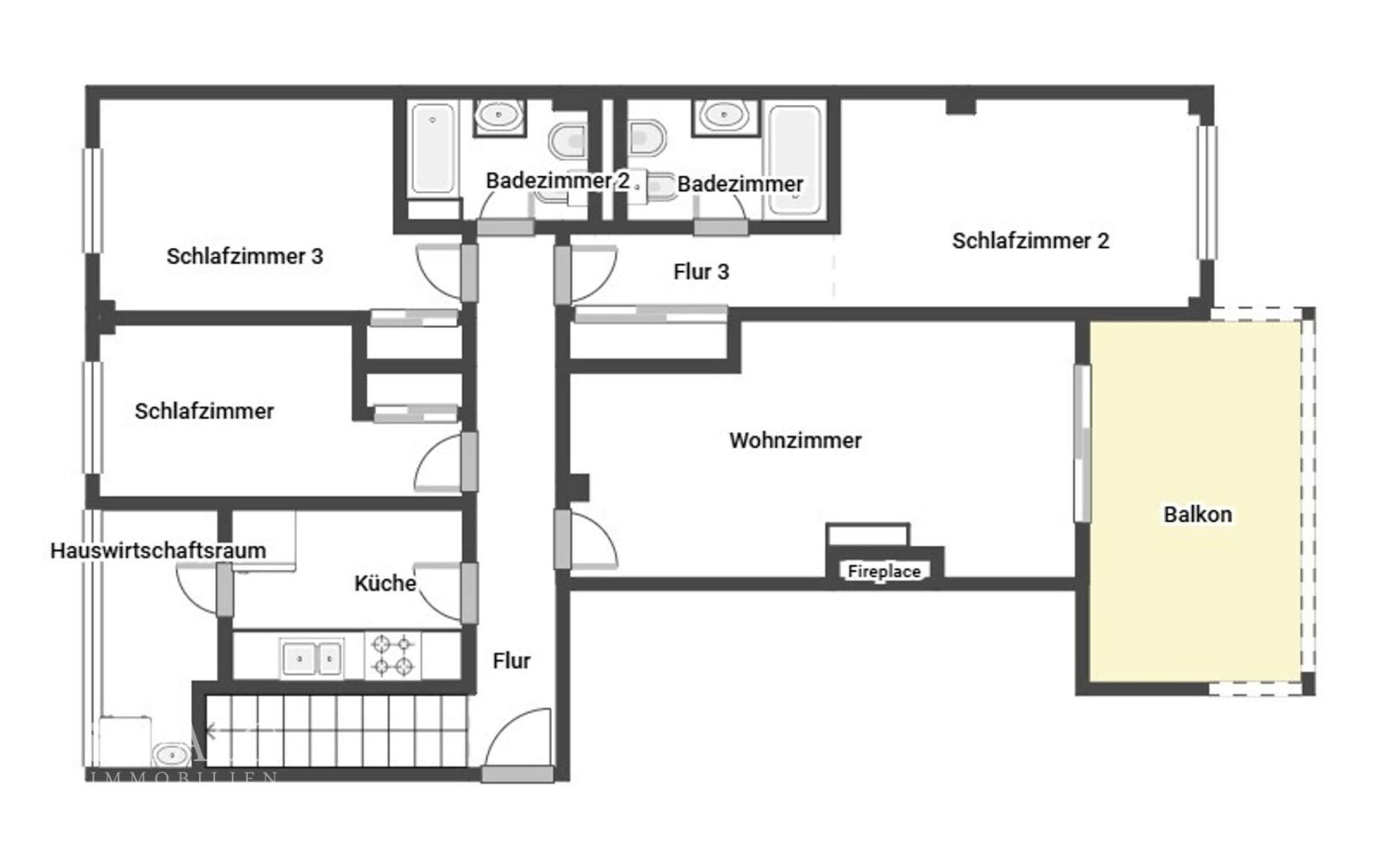
Diese charmante Penthousewohnung bietet ein unvergleichliches Wohnerlebnis in einer der begehrtesten Lagen von Colonia Sant Jordi. Auf ca. 100 m² Wohnfläche und mit einer großzügigen Dachterrasse von 50 m² sowie einem zusätzlichen Balkon von ca. 10 m² genießen Sie spektakuläre Panoramablicke auf das Mittelmeer – ein echtes Highlight für Meerliebhaber.
Die Wohnung verfügt über drei helle und großzügige Schlafzimmer mit viel Tageslicht, ideal für entspannte Stunden und erholsamen Schlaf.
Das offene Wohnkonzept mit lichtdurchfluteten Räumen schafft eine einladende Atmosphäre und bietet direkten Zugang zur beeindruckenden Dachterrasse – perfekt, um die mallorquinische Sonne zu genießen oder unvergessliche Sonnenuntergänge über dem Meer zu erleben.
Ein exklusives Zuhause für alle, die stilvolles Wohnen in bester Lage suchen.
![[COVER] Meerblick](https://haushirsch.de/wp-content/uploads/2c62d3147464096c819af0256f061c46.jpeg)


