Menu
Haus
Fire Icon1

Mehrgenerationshaus, Gewerbe und Wertanlage unter einem Dach. Naturparadies & Attraktive Preis!

Kaufpreis 1 €
Wohnfläche
ca. 304 m²
Nutzfläche
ca. 676 m²
Gesamtfläche
ca. 304 m²
Grundstück
ca. 1.700 m²
Anzahl Zimmer
11
Anzahl Badezimmer
4
Anzahl Balkone/Terrassen
2
Anzahl Terrassen
2
Anzahl Stellplätze
7
Baujahr
2014
Letzte Modernisierung
2014

Objektbeschreibung

Diese Immobilie wartet nicht auf jemanden, der sucht. Sie wartet auf jemanden, der erkennt. Nutzen Sie diese einmalige Chance, ein Objekt zu erwerben, das in seiner Vielseitigkeit und Lagequalität keine Kompromisse eingeht. Ein Investment, das sich nicht nur in Zahlen, sondern in Lebensqualität auszahlt.

Stellen Sie sich vor: Morgens öffnen Sie die Balkontür, und vor Ihnen liegt das satte Grün der oberbayerischen Voralpenlandschaft – der Ammersee glitzert in der Ferne, die Luft riecht nach frischem Gras und Stille. Und trotzdem sind Sie in 40 Minuten im Herzen Münchens.

Dieses beeindruckende Anwesen in Windach am Ammersee vereint auf einem ca. 1.700 m² großen Grundstück großzügiges Wohnen mit nachhaltiger Technik und vielseitigen gewerblichen Möglichkeiten. Die Immobilie aus dem Jahr 1978 wurde zwischen 2013 und 2014 umfassend modernisiert und präsentiert sich in einem äußerst gepflegten Zustand.

Die Aufteilung im Detail

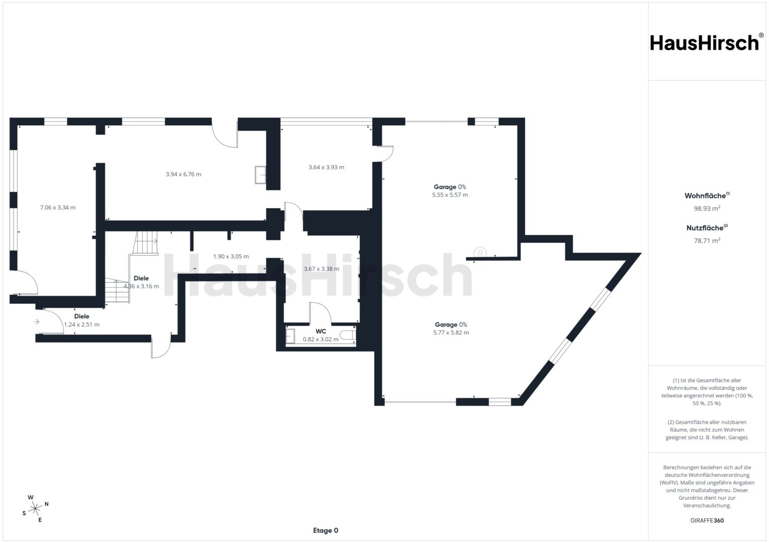
Vielseitigkeit und Potenzial im Erdgeschoss
Das Erdgeschoss dieser Immobilie überzeugt durch eine intelligente Aufteilung in zwei autarke Bereiche, die maximale Flexibilität für unterschiedliche Lebenskonzepte bieten:

Ostseite – Wohnkomfort & Beständigkeit: Hier befindet sich eine charmante 2-Zimmer-Einliegerwohnung mit eigenem, separatem Eingang. Sie wird aktuell von einem sehr angenehmen älteren Herrn bewohnt, was für ein ruhiges und verlässliches Nachbarschaftsverhältnis sorgt.

Westseite – Maximale Flexibilität: Besonders hervorzuheben ist die Westseite des Hauses. Diese Räumlichkeiten verfügen ebenfalls über einen eigenen Zugang und werden derzeit als Büro- und Ladenflächen genutzt. Das Besondere hier ist die enorme Vielseitigkeit:

Gewerbliche Nutzung: Ideal für Freiberufler, Dienstleister, Handwerker oder als Atelier.

Wohnraum-Option: Durch eine Nutzungsänderung lassen sich diese Flächen unkompliziert zu einer großen, großzügigen Wohnung umgestalten. Sämtliche Anschlüsse, die dafür nötig sind, sind bereits vorbereitet.

Obergeschoss: Diese Ebene besticht durch eine helle 3-Zimmer-Wohnung mit einem weitläufigen Wohn- und Essbereich, einem gemütlichen Kaminofen und einer hochwertigen Einbauküche (Miele-Geräte, Rizzoli-Ofen). Ein umlaufender Süd-Ost-Balkon sowie ein modernes Badezimmer mit Fußbodenheizung und Zugang zur Dachterrasse runden das Angebot ab.

Dachgeschoss: Das 2013 ausgebaute Dachgeschoss bietet eine zusätzliche 2-Zimmer-Wohnung mit Studio, integrierter Küche und Kaminofen. Dank des offenen Treppenhauses lassen sich das Ober- und Dachgeschoss flexibel als eine sehr große, zusammenhängende Wohneinheit nutzen.

Immobilien wie diese kommen selten auf den Markt. Ein vollständig modernisiertes Mehrgenerationenhaus in begehrter Ammersee-Lage – mit nachhaltiger Haustechnik, einer einzigartigen Kombination aus privatem Wohnraum und professioneller Gewerbefläche, einem Garten, der atmen lässt. All das zu einem Kaufpreis, der diesem Gesamtpaket mehr als gerecht wird.

Überzeugen Sie sich selbst. Wir freuen uns auf Ihren Anruf und zeigen Ihnen das Haus persönlich.

WeiterlesenWeniger anzeigen

Ausstattung

Die Immobilie präsentiert sich nach der Komplettsanierung 2013/2014 in einem sehr gepflegten Zustand. Zu den herausragenden Merkmalen zählen:

Haustechnik & Energie
– Holzpellet-Zentralheizung (Baujahr Anlage 2014) – effizient, CO₂-neutral und kostensparend im Betrieb
– Heißwasser-Solaranlage zur Heizungsunterstützung und Warmwasseraufbereitung
– Pufferspeicher 3.200 Liter – maximale Solarenergienutzung, ausbaufähig für weitere Energieträger
– Dreifach und Doppelverglaste Kunststofffenster (renoviert) – hervorragende Wärmedämmung

Innenausstattung
– Hochwertige Einbauküche OG mit Rizzoli-Küchenofen und Miele-Spülmaschine
– Mehrere Kaminöfen in Wohn- und Dachgeschoss
– Modernisiertes Badezimmer OG mit Fußbodenheizung, Badewanne, Dusche und Dachterrasse
– Stilvolle Kassettentüren im gesamten Innenbereich
– Bodenbeläge in moderner Parkettoptik – zeitlos elegant und pflegeleicht
– Schlafzimmer OG mit Bad en Suite

Außenbereich & Infrastruktur
– Gepflegter, uneinsehbarer Garten auf ca. 1.700 m² Grundstück
– Großzügige Holzterrasse mit idyllischem Koiteich
– 6 Außenstellplätze + 1 Carport direkt am Haus
– Keller mit separaten Abteilen für jede Einheit

WeiterlesenWeniger anzeigen
Balkon
Ja
Stellplatz
Ja
Kamin
Ja
Carport
Ja
Parken im Freien
Ja
Garten
Ja
Barrierefrei
Ja
Abstellraum
Ja
Gäste WC
Ja
Dusche
Ja
Bad mit Badewanne
Ja
Bad mit Fenster
Ja
Fliesen
Ja
Laminat
Ja

Energieeffizienzklasse

A+
A
B
C
D
E
F
G
H

Energie & Heizung

Baujahr2014
EnergieausweisVerfügbar
Energie­ausweistypVerbrauchsausweis
Erstellt am01.05.2014
Gültig bis30.04.2024
Endenergieverbrauch121 kWh/(m²·a)
Mit Warmwasser
PrimärenergieträgerHOLZPELLETS
Energieeffizienz KlasseD
HeizungsartFußbodenheizung
HeizungsartHolz-Pelletheizung
EnergieträgerSolar

Lage

Windach liegt im Landkreis Landsberg am Lech, malerisch eingebettet in die sanften Hügel nördlich des Ammersees – und damit in einer der begehrtesten Wohnlagen Oberbayerns. Die Kombination aus absoluter Naturidylle und hervorragender Anbindung an die Metropolregion München macht diese Lage zu etwas Besonderem.

Verkehrsanbindung
–A96 Richtung München/Lindau nur ca. 1,5 km entfernt – München in ca. 40 Minuten
–Bahnhof Geltendorf (RB67) ca. 1,5 km – direkte Verbindung nach München
–Buslinien 809, 891, 894 mit Haltestelle ca. 270 m entfernt
–Flughafen München in ca. 41 Minuten erreichbar

Nahversorgung & Lebensqualität
–Kindergarten, Grundschule und Ärzte direkt im Ort
–Einkaufsmöglichkeiten in Windach und Landsberg am Lech (ca. 8 km)
–Ammersee und Windachspeicher quasi vor der Haustür – Wandern, Segeln, Baden
–Naturparadies für Familien, Naturliebhaber und Sportbegeisterte

WeiterlesenWeniger anzeigen

Ähnliche Immobilien

In nur 1 Minute
 zum ersten Finanzierungsangebot

Kaufpreis
1 €
Provisionspflichtig
Ja
Käuferprovision
3.57%
Provisionshinweis
Mit Abschluss des notariellen Kaufvertrages ist die Käuferprovision in der angegebenen Höhe inkl. gesetzlicher Mehrwertsteuer verdient und fällig.
Adela Richter

Adela Richter

Exposé anfordern
ID: HA2626928

Sie wünschen mehr Informationen? Jetzt ein Exposé anfragen!