Zum Verkauf steht ein gepflegtes Mehrfamilienhaus mit insgesamt drei abgeschlossenen und vollständig vermieteten Wohneinheiten. Die Immobilie stellt eine attraktive Kapitalanlage dar und überzeugt durch ihre durchdachte Aufteilung sowie den guten baulichen Zustand.
Die Wohnung im Erdgeschoss bietet einen besonderen Wohnkomfort: Sie ist mit einem Kamin ausgestattet und verfügt über einen direkten Zugang zum Garten. Darüber hinaus besteht von hier aus ein interner Zugang zu den im Kellergeschoss gelegenen Hobbyräumen im Souterrain, die zusätzliche Nutzfläche mit vielfältigen Verwendungsmöglichkeiten bieten.
Das Haus ist vollständig unterkellert und verfügt neben den Hobbyräumen über einen gemeinschaftlichen Waschraum. Für Fahrzeuge und zusätzlichen Stauraum sind eine Garage, ein Carport sowie ein separater Abstellraum vorhanden, was den praktischen Nutzen der Immobilie weiter erhöht.
Im Jahr 2023 wurden umfangreiche Modernisierungsmaßnahmen durchgeführt. Dazu zählen die Anbringung einer Außendämmung mit Dämmwolle, der Einbau moderner dreifachverglaster Fenster sowie eine vollständige Neueindeckung des Daches. Diese Maßnahmen tragen wesentlich zur Energieeffizienz und Werterhaltung des Gebäudes bei.
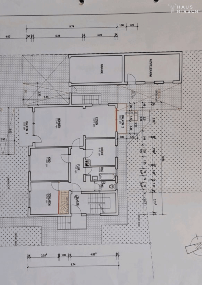
Die Gesamtwohnfläche beträgt ca. 282 m² und verteilt sich auf 13 Zimmer. Die Wohnflächen gliedern sich in eine ca. 90 m² große, vermietete Wohnung im Erdgeschoss, eine ebenfalls vermietete Einheit im ersten Obergeschoss mit ca. 90 m² sowie eine vermietete Dachgeschosswohnung mit ca. 67 m². Ergänzt wird das Flächenangebot durch ca. 35 m² Hobbyräume im Kellergeschoss (Souterrain), die vom Erdgeschoss aus zugänglich sind.
Der Kaufpreis beträgt 1.250.000 €. Die jährliche Nettokaltmiete beläuft sich mit Staffelmietverträgen auf ca. 50.000 €, wodurch sich diese Immobilie als solide und nachhaltige Investitionsmöglichkeit präsentiert.



