* Objektzustand: Neuwertig, nach umfassender Kernsanierung im Jahr 2025.
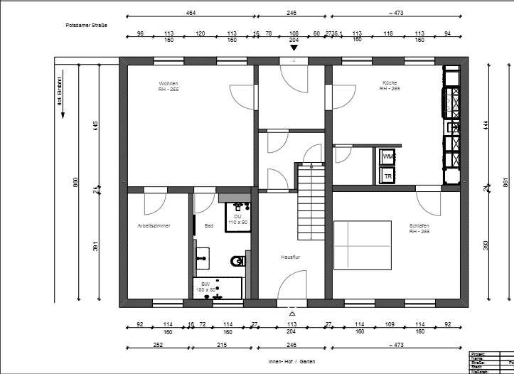
* Gebäudeteile: Das Anwesen besteht aus einem Hauptgebäude (ca. 250 m² Wohnfläche, 2 Wohneinheiten) und einer separaten Remise (ca. 120 m² Nutzfläche über EG/OG).
* Sanierungsumfang: Die Arbeiten umfassen Fassade (16 cm Dämmung), Dach (30 cm Dämmung), Fenster, Türen, Innenausbau sowie die gesamte Haustechnik (Heizung, Sanitär, Elektro).
* Wohneinheiten: Zwei separate Eingänge; EG-Wohnung ca. 83 m², Hauptwohnung (OG/DG) ca. 170 m².
* Keller: Ca. 40 m² Kellerfläche, von beiden Wohneinheiten über den Flur zugänglich.
* Außenbereich: Gepflegter Garten und Hofbereich.
* Energiekonzept: Energieeffizienzklasse A.
* * * * * * * * * * * * * * * * * * * * * * * * * * * * * * * * * * * * * * * * * * * * * * * * * * * * * * *
Görtz-Invest: Wir finden die beste Finanzierung für Sie und Ihre Immobilie!
Baufinanzierung und Ratenkredite: Kompetent und Individuell, über 500 Banken. 100%-Finanzierung, Vollfinanzierung. Spezielle Tarife für Heilberufe.



