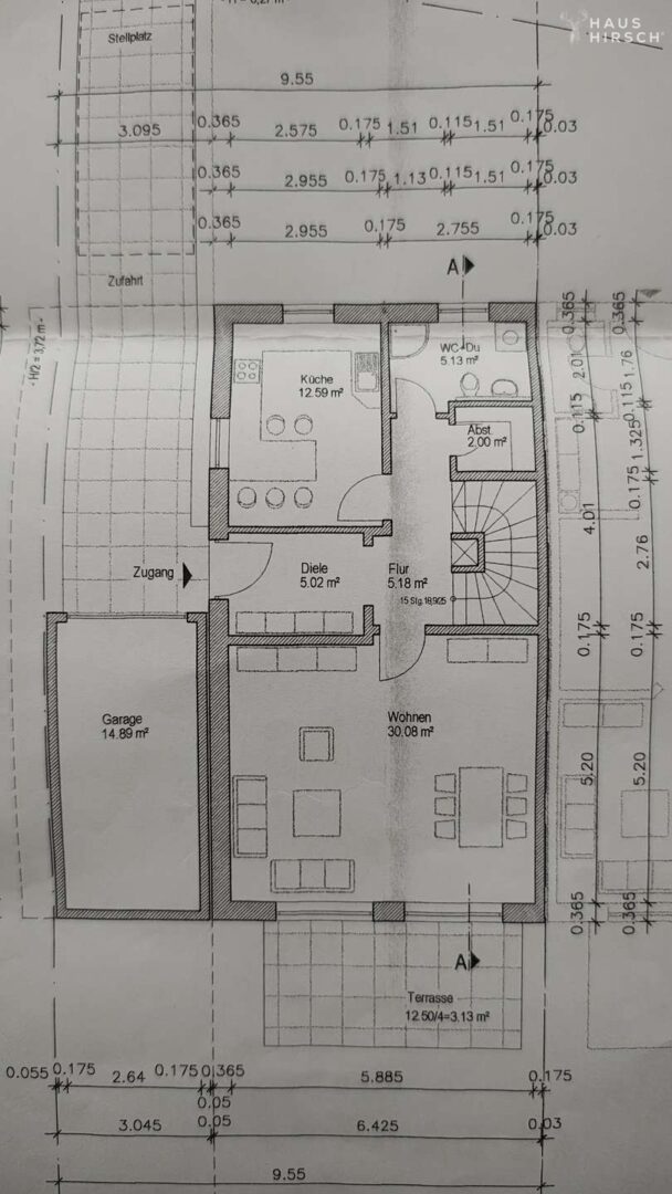
Diese gepflegte Doppelhaushälfte mit ca. 150 m² Wohnfläche und 5 Zimmern bietet eine solide und durchdachte Basis für Ihr neues Zuhause in Diedorf.
Im Erdgeschoss erwartet Sie ein sonniges Wohnzimmer mit direktem Zugang zur Terrasse, ideal für entspannte Stunden im Freien. Die abgetrennte Küche sorgt für klare Raumstrukturen und kann nach Rücksprache zusätzlich erworben werden. Ergänzt wird diese Ebene durch eine Gästetoilette mit Dusche sowie einen praktischen Abstellraum.
Über eine Betontreppe mit hochwertigen Granitstufen gelangt man in das Obergeschoss. Hier befinden sich drei gut geschnittene Schlafzimmer sowie ein großzügiges Badezimmer, ausgestattet mit Badewanne, Dusche und Bidet.
Eine weitere Treppe führt in das großzügig ausgebaute Dachgeschoss, das flexibel als zusätzliches Schlafzimmer, Hobbyraum oder Büro genutzt werden kann.
Im gesamten Haus ist eine Fußbodenheizung verbaut – diese ist sogar in einem der Kellerräume vorhanden und sorgt für angenehmen Wohnkomfort.
Die Doppelhaushälfte ist voll unterkellert. Im Keller befindet sich die Heizungsanlage der Erdgas-Heizung, darüber hinaus steht ausreichend Lagerfläche zur Verfügung. Zusätzlich ist auf dem Dach eine Solaranlage installiert.
Vor dem Haus stehen bis zu drei Stellplätze zur Verfügung.
Das Haus ist ab dem 01.03.2026 bezugsfrei.



