Menu
Haus
Fire Icon59

Sanierter Traumbungalow, barrierefrei in kölner Top-Lage! Ca.165 m2 Fläche, 5 Z. Garten & Garage.

Kaufpreis auf Anfrage
Wohnfläche
ca. 126,68 m²
Nutzfläche
ca. 45 m²
Gesamtfläche
ca. 126,68 m²
Grundstück
ca. 239 m²
Balkon-/Terrassenbereich
ca. 15 m²
Gartenfläche
ca. 110 m²
Anzahl Zimmer
5
Anzahl der Schlafzimmer
2
Anzahl Badezimmer
2
Anzahl Terrassen
1
Anzahl Stellplätze
1
Baujahr
1978
Letzte Modernisierung
2024

Objektbeschreibung

Ein Zuhause, das mehr ist als nur vier Wände –
dieser außergewöhnliche Bungalow in begehrter Kölner Toplage vereint modernes Wohnen, architektonische Klarheit und ein Höchstmaß an Komfort auf einer Ebene.
Nach einer umfassenden und hochwertigen Modernisierung erst in 2024 präsentiert sich die Immobilie in einem nahezu neuwertigen Zustand – stilvoll, durchdacht und sofort bezugsbereit.

Großzügige, lichtdurchflutete Räume, ein geschütztes Atrium als architektonisches Highlight sowie der private Garten schaffen eine Wohnatmosphäre, die gleichermaßen Ruhe und Offenheit vermittelt.
Die Kombination aus barrierefreiem Wohnen, hochwertiger Ausstattung und urbaner Nähe macht dieses Objekt zu einer seltenen Gelegenheit – ideal für anspruchsvolle Eigennutzer mit Sinn für Qualität und Design.

Einziehen, ankommen und genießen – genau dafür wurde dieses Haus geschaffen.

WeiterlesenWeniger anzeigen

Ausstattung

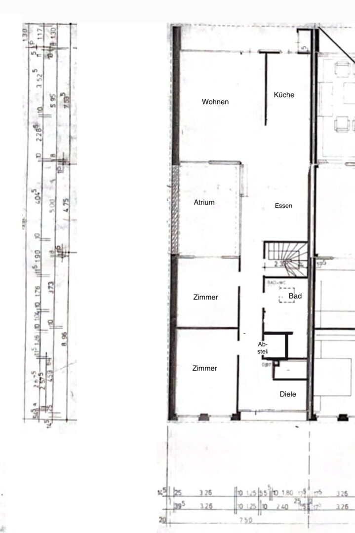
Der Bungalow überzeugt durch eine klare, funktionale Architektur und ein offenes Raumkonzept, das modernes Wohnen auf höchstem Niveau ermöglicht. Auf einer Gesamtfläche von rund 165 m² – inklusive wohnlich ausgebautem Untergeschoss – entfaltet sich ein durchdachtes Raumgefüge mit fließenden Übergängen und hoher Aufenthaltsqualität.

Das Herzstück bildet der großzügige Wohn- und Essbereich mit ca. 50 m², der durch große Fensterflächen sowie die direkte Verbindung zum zentralen Atrium eine außergewöhnliche Lichtwirkung und ein offenes Raumgefühl schafft. Innen- und Außenbereiche verschmelzen hier zu einer harmonischen Einheit – ein Konzept, das sowohl im Alltag als auch beim Empfang von Gästen überzeugt.

Die moderne Einbauküche fügt sich elegant in das Gesamtbild ein und überzeugt durch ihr zeitloses Design in Weiß und Anthrazit sowie hochwertige Markengeräte. Sie ist funktional durchdacht, optisch reduziert und erfüllt höchste Ansprüche an Ästhetik und Alltagstauglichkeit.

Im Erdgeschoss stehen zwei gut geschnittene Schlafzimmer zur Verfügung, die durch ihre ruhige Lage und angenehme Proportionen vielseitig nutzbar sind. Das stilvolle Hauptbad überzeugt mit einer großzügigen Walk-in-Dusche, hochwertigen Armaturen und natürlichem Lichteinfall – ein Ort der Ruhe und Entspannung. Ergänzt wird das Raumangebot durch ein weiteres modernes Gäste-Duschbad.

Das Untergeschoss erweitert die Nutzungsmöglichkeiten erheblich: Zwei helle, wohnlich ausgebaute Räume mit Tageslicht eignen sich ideal als Homeoffice, Gästebereich oder Hobbyräume. Ergänzt wird dieser Bereich durch praktische Nebenflächen und eine separate Waschnische.

Besonderes Augenmerk wurde auf hochwertige Materialien gelegt: Echtholz-Stäbchenparkett in den Wohnräumen sowie großformatige, moderne Fliesen sorgen für ein stimmiges und langlebiges Gesamtbild. Eine Fußbodenheizung gewährleistet dabei zeitgemäßen Wohnkomfort.

Der Außenbereich überzeugt mit einem liebevoll angelegten Garten und einer sonnigen Terrasse – ein privater Rückzugsort mit hoher Aufenthaltsqualität und idealer Ausrichtung. Ergänzt wird das Angebot durch einen Tiefgaragenstellplatz, der den Wohnkomfort zusätzlich abrundet.

Insgesamt präsentiert sich diese Immobilie als perfekt abgestimmtes Gesamtpaket: modernisiert, hochwertig ausgestattet und architektonisch besonders.

Ein Tiefgaragenstellplatz soll für 15.000 € erworben werden und rundet das Angebot komfortabel ab.

WeiterlesenWeniger anzeigen
Stellplatz
Ja
Ausstattung
Gehoben
Einbauküche
Ja
Tiefgaragenstellplatz
Ja
Garten
Ja
Barrierefrei
Ja
Gäste WC
Ja
Dusche
Ja
Bad mit Fenster
Ja
Fliesen
Ja
Parkett
Ja
Kunststoff
Ja

Energie & Heizung

Baujahr1978
Energie­ausweistypVerbrauchsausweis
Mit Warmwasser
PrimärenergieträgerGas
HeizungsartFußbodenheizung
HeizungsartZentralheizung

Lage

Der Bungalow befindet sich in der begehrten Siedlung "Haus Közel" im Kölner Westen, einer ruhigen, gepflegten und äußerst begehrten Wohnlage.
Das Umfeld ist geprägt von stilvollen Einfamilienhäusern, kleinen Gärten und einem harmonischen, grünen Wohncharakter. Hier vereinen sich städtische Nähe und ruhiges Wohnen in idealer Weise.

Die Anbindung ist hervorragend: Einkaufsmöglichkeiten, Ärzte, Schulen und Kindergärten liegen im direkten Umfeld. Die Kölner Innenstadt ist sowohl mit dem Auto als auch mit öffentlichen Verkehrsmitteln in wenigen Minuten erreichbar. Spaziergänge oder Fahrradtouren entlang der nahegelegenen Grünzüge bieten hohen Freizeitwert.

Diese Lage zählt zu den gefragtesten im linksrheinischen Köln – ideal für alle, die Wert auf Ruhe, Sicherheit und urbanen Komfort legen.

WeiterlesenWeniger anzeigen

Ähnliche Immobilien

Keine ähnlichen Immobilien gefunden.

In nur 1 Minute
 zum ersten Finanzierungsangebot

Kaufpreis
auf Anfrage
Heizkosten
in Nebenkosten enthalten
Provisionspflichtig
Ja
Käuferprovision
3.57%
Provisionshinweis
Die angegebene Käuferprovision (inkl. MwSt.) ist verdient und fällig mit Beurkundung des notariellen Kaufvertrages. Alle Angaben beruhen auf Informationen des Eigentümers.
David Bedzent

David Bedzent

Exposé anfordern
ID: HA241358081

Sie wünschen mehr Informationen? Jetzt ein Exposé anfragen!