Dieses Einfamilienhaus in Heilbronn bietet eine solide Grundlage für alle, die ein Projekt mit Potenzial suchen. Das Haus wurde zuletzt 1993 modernisiert und präsentiert sich heute als sanierungsbedürftiges Objekt, das darauf wartet, nach eigenen Vorstellungen neu gestaltet zu werden.
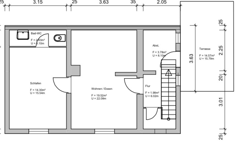
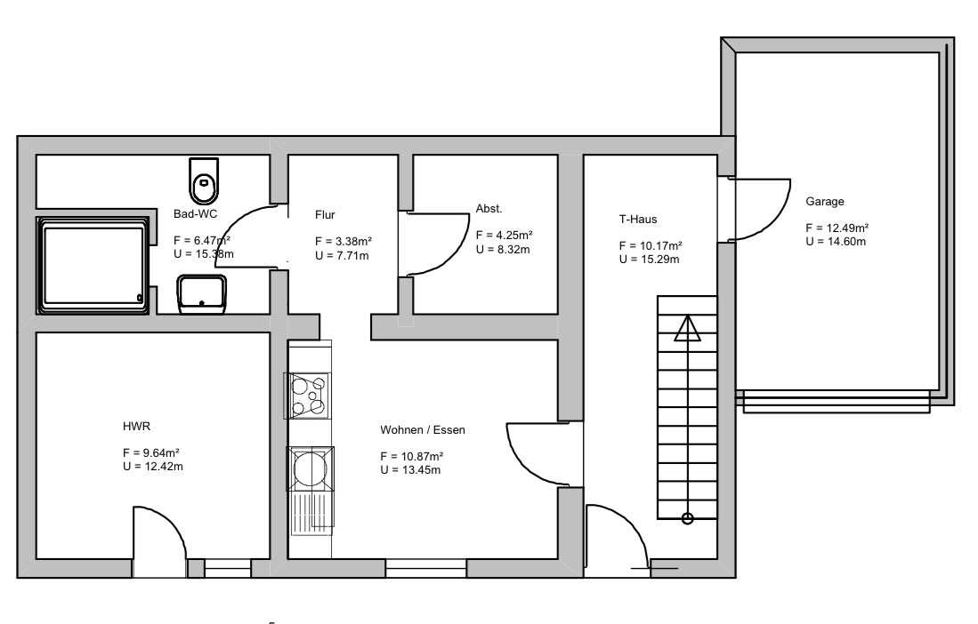
Die vorhandene Raumaufteilung bietet eine praktische Grundstruktur: Eine Einbauküche ist bereits vorhanden und erleichtert den Einzug, ein separates Gäste-WC sorgt für zusätzlichen Komfort, und ein Abstellraum bietet nützlichen Stauraum für den Alltag.
Für Handwerker, Renovierungsbegeisterte oder Investoren stellt dieses Haus eine attraktive Möglichkeit dar, eine Immobilie in der gefragten Region Heilbronn zu erwerben und durch gezielte Modernisierungsmaßnahmen erheblich aufzuwerten. Der Kaufpreis spiegelt den aktuellen Zustand wider und lässt entsprechenden Spielraum für Ihre Investitionen in die Zukunft der Immobilie.
Nutzen Sie die Chance, dieses Haus ganz nach Ihrem Geschmack und Ihren Bedürfnissen zu gestalten und schaffen Sie sich Ihren individuellen Wohntraum in Heilbronn.



