Willkommen zu einer herausragenden Investitionsmöglichkeit im Herzen von München.
Wir präsentieren ein denkmalgeschütztes Mehrfamilienhaus zentral in München gelegen nahe des Kolumbusplatzes als Kapitalanlage, dass sowohl für langfristige Anleger als auch für strategische Investoren eine einzigartige Chance darstellt.
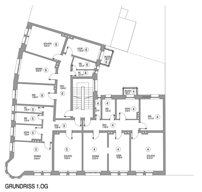
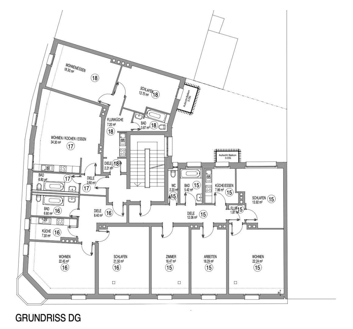
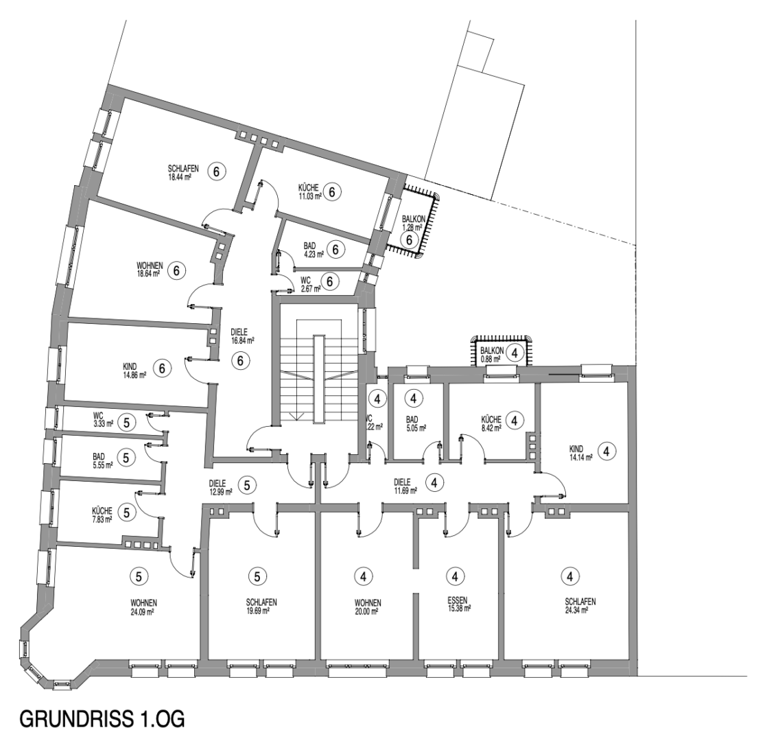
Mit 16 Wohneinheiten und 3 Gewerbeeinheiten mit einer Gesamtwohnfläche von 1045,18 Quadratmetern sowie einer vermietbaren Fläche von 1284 Quadratmetern, kombiniert dieses Objekt historischen Charme mit modernem Wohnkomfort.
Wohneinheiten: 16 Stück
Wohnfläche: 1045,18 Quadratmeter
Gewerbeeinheiten: 3 Stück
Gewerbe/Ladenfläche: 239,3 Quadratmeter
Lagerfläche: ca. 90 Quadratmeter
Vermietbare Fläche Gesamt: ca. 1372 Quadratmeter
Mieteinnahmen und Investitionspotenzial:
IST-Nettomieteinnahmen: Derzeitige jährliche Nettomieteinnahmen belaufen sich auf 268.000 Euro.
SOLL-Nettomietpotenzial: Geschätzte jährliche Nettomieteinnahmen von 470.000 Euro, unterstreicht das erhebliche Mietsteigerungspotenzial.
Steigerungsmöglichkeiten: Durch strategische Maßnahmen wie die Umwandlung in Studenten-WGs oder die Optimierung der Gewerbeeinheiten kann die Rendite signifikant gesteigert werden.
Verkaufspotenzial: Einzelverkauf der Wohneinheiten dank abgeschlossenem Haus und separaten Grundbüchern möglich.
Ausstattung und Wohnqualität:
Technische Ausstattung: Gaszentralheizung, 2-fach oder 3-fach verglaste Fenster und ein saniertes Dach sorgen für Energieeffizienz. Ein in 2014 genehmigter Aufzug bietet zukünftigen Komfort bei Umsetzung der Genehmigung.
Innenraumgestaltung: Teilweise hochwertig sanierte Wohnungen mit hochwertiger Ausstattung wie Regenduschen, teilweise Fußbodenheizung und Badewannen. Massives Parkett und Feinsteinzeugfliesen, sowie Stuckarbeiten runden den hochwertigen Wohnstandard ab.
Historische und moderne Elemente: Sorgfältig sanierte Fassade, die den denkmalgeschützten Charakter bewahrt, während innen modernster Wohnkomfort gewährleistet ist.
Weitere Annehmlichkeiten:
Außenbereich: Ein Innenhof bietet praktische Lösungen für Müllentsorgung und Fahrradabstellplätze.
Stauraum: Großzügige Kellereinheiten stehen jeder Partei zur Verfügung, um zusätzlichen Stauraum zu bieten..
Für detaillierte Informationen oder zur Vereinbarung eines Besichtigungstermins, kontaktieren Sie uns gerne.



