Willkommen in einer Liga für sich. In der Schulstraße , im pulsierenden Herzen von Neuhausen-Nymphenburg, bietet sich Ihnen eine Gelegenheit, die es auf dem Münchner Immobilienmarkt vielleicht nur einmal in einer Generation gibt: Der Erwerb der gesamten Westflügelseite im Dachgeschoss eines prachtvollen Gründerzeitbaus.
Hier werden zwei spektakuläre Einheiten – das Turm-Loft und das Dach-Loft – zu einer gigantischen Wohnskulptur vereint. Auf ca. 205 m² Wohnfläche (ca. 249 m² Wohn-/Nutzfläche) mit bis zu 7-Zimmern entsteht ein Raumwunder mit bis zu 9,50 Metern Deckenhöhe, eingebettet in die historische Substanz eines Baudenkmals und ausgestattet mit dem kompromisslosen Luxus eines Erstbezugs.
Dies ist kein Angebot für Kompromisse. Dies ist ein Zuhause für Visionäre, die Großes suchen: Platz für die Großfamilie, Raum für Kunst oder die ultimative Symbiose aus Leben und Arbeiten.
DAS KONZEPT: MAXIMALE FREIHEIT
Durch die Zusammenlegung der Einheiten entsteht ein Grundriss von seltener Großzügigkeit, der sich über zwei Ebenen erstreckt und flexible Lebensmodelle ermöglicht.
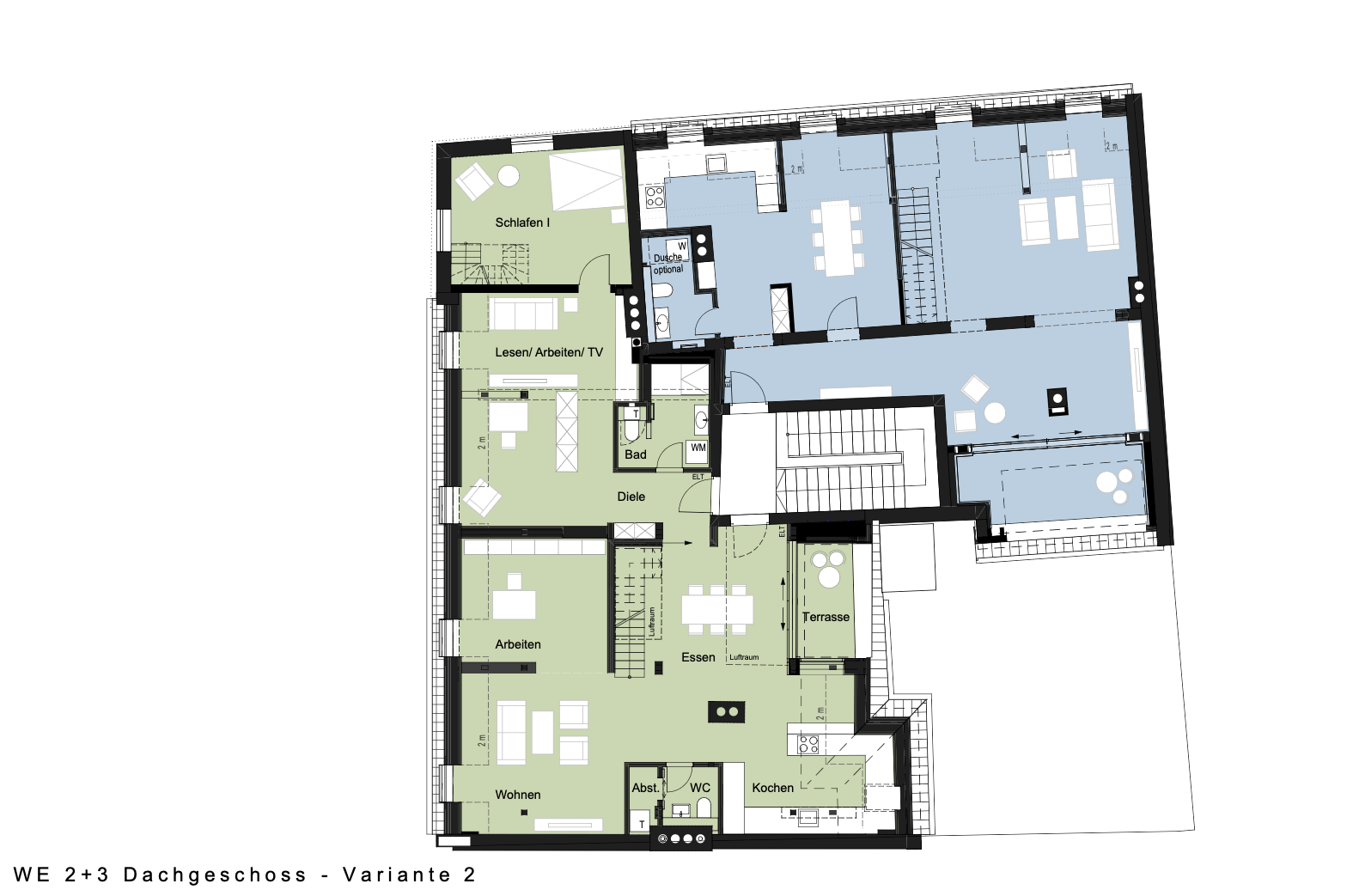
Ebene 1: Representative Living (4. Obergeschoss) – ca. 125 m²
Der Lift bringt Sie direkt auf Ihre Etage. Hier spielt sich das gesellschaftliche Leben ab.
- Grand Salon: Ein weitläufiger Wohn- und Essbereich bildet das Herzstück. Durch maßgefertigte Fensterflächen fällt das Licht herein und inszeniert den Raum.
- Outdoor-Lounge: Die Loggia (Dachterrasse) liegt ruhig zum grünen Innenhof ausgerichtet – der perfekte, geschützte Ort für entspannte Stunden unter freiem Himmel.
- Kulinarik & Flexibilität: Ein Highlight sind die zwei möglichen Küchenanschlüsse. Gestalten Sie eine offene Showküche mit kommunikativem Frühstücksbereich im Zentrum und nutzen Sie den zweiten Anschluss für eine Back-Kitchen oder Bar.
- Atmosphäre: Ein Kaminanschluss im großzügigen Lounge-Bereich sorgt für knisternde Behaglichkeit und Wärme an kühlen Tagen.
- Entrée & Funktion: Ein offenes Foyer verbindet die Bereiche (Turmseite und Dach-Loft-Seite) fließend. Praktische Räume wie ein Hauswirtschaftsraum, Abstellflächen und ein Gäste-WC sorgen für funktionale Ordnung im Hintergrund .
Ebene 2: Private Retreat & The Tower (Dachgeschoss/Galerie) – ca. 85 m² Nutzfläche
Eine hochwertige Treppe führt hinauf in die zweite Ebene, wo sich der Altbau-Charme durch Sichtbalken und Dachschrägen voll entfaltet.
- Der Turm-Effekt: Ein absolutes Alleinstellungsmerkmal ist die Turmgalerie (ca. 10 m²). Mit Blick in den historischen Turmraum und einer atemberaubenden Raumhöhe ist dies ein Rückzugsort mit „Wow-Effekt“ – ideal als Bibliothek, Meditationsraum oder inspirierendes Home-Office.
- Master-Suite & More: Der ca. 70,9 m² große Dachspitz (WE3) bietet enorme Flexibilität. Nutzen Sie ihn als luxuriösen Elternbereich mit Ankleide, als riesiges Atelier, Yoga-Studio oder teilen Sie ihn in zwei helle Kinderzimmer auf.
- Wellness-Tempel: Das geplante Tageslichtbad ist Ihre private Spa-Oase. Vorgesehen sind eine freistehende Badewanne und eine großzügige Walk-in-Dusche – Luxus pur.
- Optionen: Ein zweites Gäste-WC oder Duschbad lässt sich auf dieser Ebene optional integrieren, um den Komfort für Familie oder Gäste zu maximieren.
Das Westflügel-Penthouse ist mehr als eine Wohnung. Es ist ein architektonisches Kunstwerk, das Geschichte bewahrt und Zukunft gestaltet. Ein Ort für Menschen, die das Besondere nicht nur suchen, sondern leben wollen.
Der Bezug ist für Q2/Q3 2026 geplant. Nutzen Sie jetzt die Zeit, um Ihre Vision in die Realität umzusetzen.
Lassen Sie uns Ihren Traum vom Turm besprechen.



