Menu
Renditeobjekt

Wohn- und Geschäftshaus mit 3 Hallen – ideale Kapitalanlage mit langfristigen Mieter! – Faktor 18!

Kaufpreis 1.200.000 €
Wohnfläche
ca. 245 m²
Gesamtfläche
ca. 900 m²
Grundstücksfläche
ca. 2.096 m²
Anzahl Balkon / Terrasse
1
Anzahl Stellplätze
4
vermietbare Fläche
ca. 900 m²
Anzahl Wohneinheiten
2
Anzahl Gewerbeeinheiten
3
Baujahr
1980
Letzte Modernisierung
2025
Zustand
Gepflegt

Objektbeschreibung

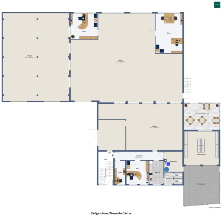
Entdecken Sie dieses beeindruckende Wohn-/Geschäftshaus zum Kauf, das keine Wünsche offen lässt. Mit einer Wohn- und Nutzfläche von ca. 245 m² (Erdgeschoss/Obergeschoss, einer Hallenfläche von gesamt 647 m² und einem großzügigen Grundstück von ca. 2.096 m² bietet dieses Objekt vielseitige Nutzungsmöglichkeiten und langfristiges Entwicklungspotenzial für Investoren sowie Projektentwickler.

Das Haus wurde zuletzt im Jahr 2022 modernisiert und befindet sich in einem gepflegten Zustand. Die Ausstattung ist funktional und praktisch, ideal für eine langfristige Investition. Die Bodenbeläge bestehen aus einer Kombination von Fliesen, Laminat und Vinylboden, die für eine ansprechende und pflegeleichte Oberfläche sorgen.

Allgemeines:

• Wohn- und Nutzfläche von ca. 245 m²
• Hallenfläche (3 Hallen) von gesamt ca. 655 m²
• Grundstücksfläche von ca. 2.096 m²
• zwei Einzelgaragen verbunden mit einem Carportstellplatz
• langfristiger Mietvertrag vorhanden (10 Jahre Laufzeit)
• Aktuelle Mieteinnahmen gesamt 5700€ (Nettorendite ca. 5,7% mit Entwicklungspotenzial)
• großzügige Wohnung im Obergeschoss mit tollen Ausblick
• großzügiger Hof mit genügend Kundenparkplätzen und Wendemöglichkeiten
• Eine voll ausgestattete Einbauküche, die den Wohnkomfort erhöht
• großer Garten mit Gartenhaus für Feierlichkeiten
• zentrale Ölheizung

Die Immobilie liegt in Balingen-Frommern, einem Stadtteil mit hervorragender Infrastruktur und angenehmer Lebensqualität.

Nutzen Sie diese Gelegenheit, um ein vielseitiges und gut ausgestattetes Wohn-/Geschäftshaus zu erwerben, das sowohl für Wohnzwecke als auch für Geschäftsnutzung ideal geeignet ist.

WeiterlesenWeniger anzeigen
Balkon
Ja
Stellplatz
Ja
Ausstattung
Standard
Dusche
Ja
Bad mit Badewanne
Ja
Bad mit Fenster
Ja
Einbauküche
Ja
Fliesen
Ja
Laminat
Ja
Garage
Ja
Parken im Freien
Ja
Garten
Ja
Keller
Ja
Abstellraum
Ja
Gäste WC
Ja

Energieeffizienzklasse

A+
A
B
C
D
E
F
G
H

Energie & Heizung

Baujahr1980
Energieausweisliegt vor
Energie­ausweistypVerbrauchsausweis
Erstellt am11.05.2020
Gültig bis11.05.2030
Endenergieverbrauch74,20 kWh/(m²·a)
Mit WarmwasserJa
PrimärenergieträgerÖl
EnergieeffizienzklasseB
HeizungsartZentralheizung

Lage

Diese Immobilie befindet sich in einer attraktiven und ruhigen Umgebung in Balingen. Die hervorragende Verkehrsanbindung gewährleistet eine bequeme Erreichbarkeit sowohl für Pendler als auch für Freizeitaktivitäten.

Entfernungen & Infrastruktur

ÖPNV

• Bahnhof Frommern – ca. 1,2 km | ca. 3–4 Minuten mit dem Auto
• Bahnhof Balingen (Württemberg) – ca. 5 km | ca. 7 Minuten mit dem Auto
• Busanbindung im Ort Frommern – fußläufig erreichbar
• Straßenverkehr
• B27 (Richtung Tübingen / Rottweil) – ca. 6 km | ca. 10 Minuten
• Stuttgart – ca. 70 km | ca. 60 Minuten
• Flughafen Stuttgart (STR) – ca. 65–70 km | ca. 50 Minuten mit dem Auto

Einkaufsmöglichkeiten

• Supermärkte (z. B. Edeka, Lidl, Netto in Frommern/Balingen) – ca. 1–3 km | 3–6 Minuten
• Innenstadt Balingen mit umfangreichen Einkaufsmöglichkeiten – ca. 5 km | ca. 7 Minuten

Ärzte & Gesundheit

• Hausärzte / Fachärzte in Frommern – ca. 1–2 km | 3–5 Minuten
• Zollernalb Klinikum Balingen – ca. 4–5 km | ca. 8 Minuten
• Apotheken im Ort – ca. 1–2 km

Schulen & Bildung

• Kindergärten in Frommern – ca. 1–2 km
• Grundschule Frommern – ca. 1,5 km | ca. 4 Minuten
• Weiterführende Schulen (Realschule / Gymnasium) in Balingen – ca. 4–6 km | 7–10 Minuten

Freizeit & Natur

• Naherholungsgebiete der Schwäbischen Alb – wenige Minuten entfernt
• Sportanlagen, Vereine und Freizeitangebote in Frommern und Balingen

Genießen Sie das Beste aus beiden Welten: eine ruhige Wohngegend mit exzellenter Verkehrsanbindung.

WeiterlesenWeniger anzeigen

Immobilienfinanzierung berechnen

Berechnen Sie Ihre individuellen Finanzierungskonditionen

Ähnliche Immobilien

Keine ähnlichen Immobilien gefunden.

In nur 1 Minute
 zum ersten Finanzierungsangebot

Kaufpreis
1.200.000 €
Kaltmiete
68.400 €
Kaufpreis/m²
1.333,33 €
Provisionspflichtig
Ja
Käuferprovision
4,76%
Provisionshinweis
Die angegebene Käuferprovision (inkl. MwSt.) ist verdient und fällig mit Beurkundung des notariellen Kaufvertrages.
X-fache
17.54
Nettorendite (Soll)
6.45
Nettorendite (Ist)
5.7
Mieteinnahmen (Ist)
68.400 €
Mieteinnahmen (Soll)
77.400 €
ID: HA2529459

Sie wünschen mehr Informationen? Jetzt ein Exposé anfragen!