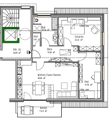
In der beschaulichen Stadt Kirchberg a.d. Jagst, im Herzen von Baden-Württemberg, befindet sich diese moderne Etagenwohnung zum Kauf. Die 3-Zimmer-Wohnung erstreckt sich über eine Wohnfläche von insgesamt 97 m² und befindet sich im 4. Obergeschoss eines gepflegten Mehrfamilienhauses mit insgesamt 3 Etagen.
Das Highlight dieser Wohnung ist der großzügige und offene Wohn- und Essbereich, der viel Platz für gemütliche Stunden mit Familie und Freunden bietet. Die bodentiefen Fenster sorgen für eine helle und freundliche Atmosphäre und ermöglichen einen herrlichen Ausblick über die Dächer der Stadt.
Die separate Küche ist komplett ausgestattet und bietet genügend Stauraum für alle Kochutensilien. Auch das Badezimmer lässt keine Wünsche offen und ist mit einer modernen Dusche ausgestattet.
Die Wohnung verfügt über insgesamt 2 Schlafzimmer, die sich ideal als Kinder-, Gäste- oder Arbeitszimmer nutzen lassen. Die Räumlichkeiten sind alle lichtdurchflutet und bieten ausreichend Platz für individuelle Gestaltungsmöglichkeiten.
Ein weiteres Highlight ist der hauseigene Tiefgaragenstellplatz, der bereits im Kaufpreis enthalten ist. Auch ein Kellerraum steht Ihnen zur Verfügung.
Das Mehrfamilienhaus ist mit einer Wärmepumpe und einer Gasheizung ausgestattet und sorgt somit für niedrige Heizkosten. Die zentrale Lage bietet eine gute Anbindung an den öffentlichen Nahverkehr sowie an die Autobahn A6.
Überzeugen Sie sich selbst von dieser modernen Etagenwohnung und vereinbaren Sie noch heute einen Besichtigungstermin. Wir freuen uns auf Ihre Kontaktaufnahme!



