Diese schöne Neubau-Dachgeschosswohnung mit Balkon in einem lediglich 4 Einheiten zählenden, modernen Doppelhaus im Stadthausstil, verfügt über einen eigens nur von dieser Wohnung zu nutzenden "Hauseingang" und bietet damit absolute Privatsphäre nach dem "Haus im Haus"-Prinzip.
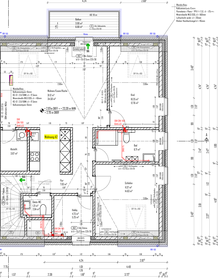
Sie betreten Ihr neues schickes Zuhause durch einen ebenerdigen Eingang mit Abstellraum und großem Windfang für Ihre Garderobe - dann gelangen Sie über eine geflieste Treppe mit Edelstahlgeländer in den Flur, von dem man mehrere Räume betreten kann. Ihren Wohnbereich mit Zugang zum Balkon, einen direkt angrenzenden, modernen und offen konzipierten Bereich für eine Küche mit einem großen Abstellraum mit Waschmaschinenanschluss gleich daneben, ein großes, komfortables Bad mit großformatigen Feinsteinzeugfliesen in elegantem Grauton, bodengleicher Dusche mit zusätzlicher Kopfbrause und komfortablem Handtuchheizkörper, ein geräumiges Elternschlafzimmer sowie ein schönes Kinderzimmer. Ein weiteres, kleines Zimmer mit Fenster kann als Büro oder "begehbarer Kleiderschrank" genutzt werden.
Die dreifachverglasten, meist bodentiefen Kunststofffenster sorgen für ein großzügiges und lichtdurchflutetes Raumgefühl; diese können zudem jederzeit auf Knopfdruck mit den elektrischen Außenrolläden verdunkelt werden. Eine Fußbodenheizung mit raumweiser Steuerung sorgt bei Bedarf für wohlige Wärme in den entweder mit hochwertigem Eiche-Laminat in Dielen-Landhausoptik oder großformatigen Bodenfliesen versehenen Räumen. Die Wohnung verfügt über einen Abstellraum im Erdgeschoss direkt am Eingang und einen mit Waschmaschinenanschluss neben der Küche. Ein Gäste-WC rundet das moderne Wohnkonzept ab.
Die automatische Be- und Entlüftungsanlage in allen Räumen versorgt die Wohnung jederzeit mit allergenarmer, gereinigter Luft ohne Heizverlust. Die Beheizung und Warmwasseraufbereitung erfolgt äußerst energieeffizient und umweltschonend über eine Wärmepumpe und wird effektiv durch eine Photovoltaik-Anlage zur Stromerzeugung ergänzt.
Der Stellplatz ist nicht im Kaufpreis enthalten. Ein PKW-Stellplatz mit Carport (im Bau) kann für 150 € mtl. angemietet werden und steht für Sie zur Verfügung. Auf Wunsch kann auch eine Wallbox installiert werden (dann 180 €/mtl.) Alternativ bietet die verkehrsberuhigte Spielstraße auch direkt vor dem Haus viele Parkmöglichkeiten.
Dies ist die letzte Wohnung des neugebauten Doppelhauses, die anderen drei sind bereits verkauft.
Sprechen Sie uns gerne dazu an.



