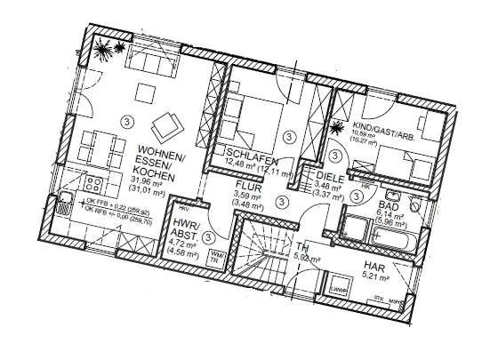
In angenehmer Wohnlage von Königswinter-Ittenbach entsteht diese hochwertig konzipierte 3,5-Zimmer-Neubauwohnung im Erdgeschoss eines modernen Wohnensembles. Das Angebot richtet sich an Käufer, die eine klare Architektur, zeitgemäßen Wohnkomfort und einen privaten Außenbereich zu schätzen wissen. Auf ca. 74,61 m² Wohnfläche zzgl. ca. 5,21 m² Nutzfläche entfaltet sich ein durchdachtes Raumkonzept, das Funktionalität und stilvolle Wohnqualität harmonisch verbindet. Die eigene Terrasse mit Gartenanteil erweitert den Wohnbereich ins Freie und schafft einen attraktiven Rückzugsort.
Diese Einheit ist Teil eines hochwertigen Neubauprojekts: Insgesamt werden vier nahezu identisch geschnittene und ähnlich große Wohnungen in zwei Zweifamilienhäusern realisiert. Bei der hier angebotenen Einheit handelt es sich um Haus 2, Wohnung 1. Der Baubeginn erfolgt, sobald in einem der beiden Zweifamilienhäuser beide Wohneinheiten verbindlich verkauft sind.
Ein Zuhause für Menschen, die bewusst entscheiden und besonderen Wert auf Qualität, Substanz und ein stimmiges Gesamtbild legen.



