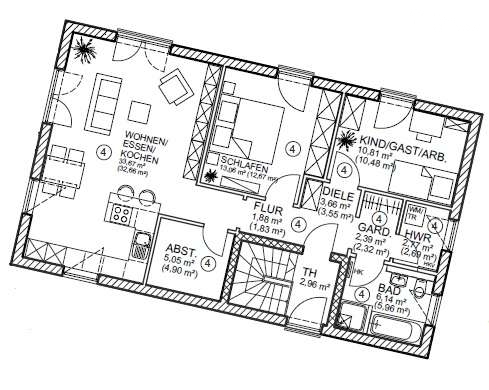
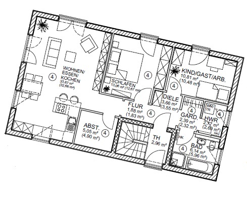
Im Dachgeschoss eines hochwertigen Neubaus in Königswinter-Ittenbach entsteht diese stilvolle 3,5-Zimmer-Wohnung für Käufer mit Anspruch an Design, Qualität und ein repräsentatives Wohnumfeld. Auf rund 78,94 m² Wohnfläche und 5,05 m² Nutzfläche präsentiert sich ein durchdachtes Wohnkonzept, das zeitgemäße Technik, Komfort und eine klare architektonische Handschrift harmonisch vereint. Die Lage im Dachgeschoss sorgt dabei für ein besonderes Maß an Ruhe, Helligkeit und Privatsphäre.
Diese Wohnung ist Teil eines hochwertigen Neubauprojekts: Insgesamt werden vier nahezu identisch geschnittene und ähnlich große Wohnungen in zwei Zweifamilienhäusern realisiert. Bei der hier angebotenen Einheit handelt es sich um Haus 2, Wohnung 2. Der Baubeginn erfolgt, sobald in einem der beiden Zweifamilienhäuser beide Wohneinheiten verbindlich verkauft sind.
Ein Zuhause für Menschen, die bewusst auswählen und Wert auf ein stimmiges Gesamtbild mit nachhaltiger Bauqualität legen.



