Menu
Haus
Fire Icon10

Premium-Einfamilienhaus mit SPA, Smart-Home & sonnigem Grundstück in Ahrensburg

Kaufpreis 1.395.000 €
Wohnfläche
ca. 216 m²
Grundstücksfläche
ca. 1.023 m²
Anzahl Zimmer
5
Anzahl Schlafzimmer
2
Anzahl Badezimmer
3
Anzahl Balkon / Terrasse
1
Balkon/Terrassenfläche
ca. 108 m²
Anzahl Stellplätze
3
Baujahr
2014
Letzte Modernisierung
2020
Zustand
Neuwertig

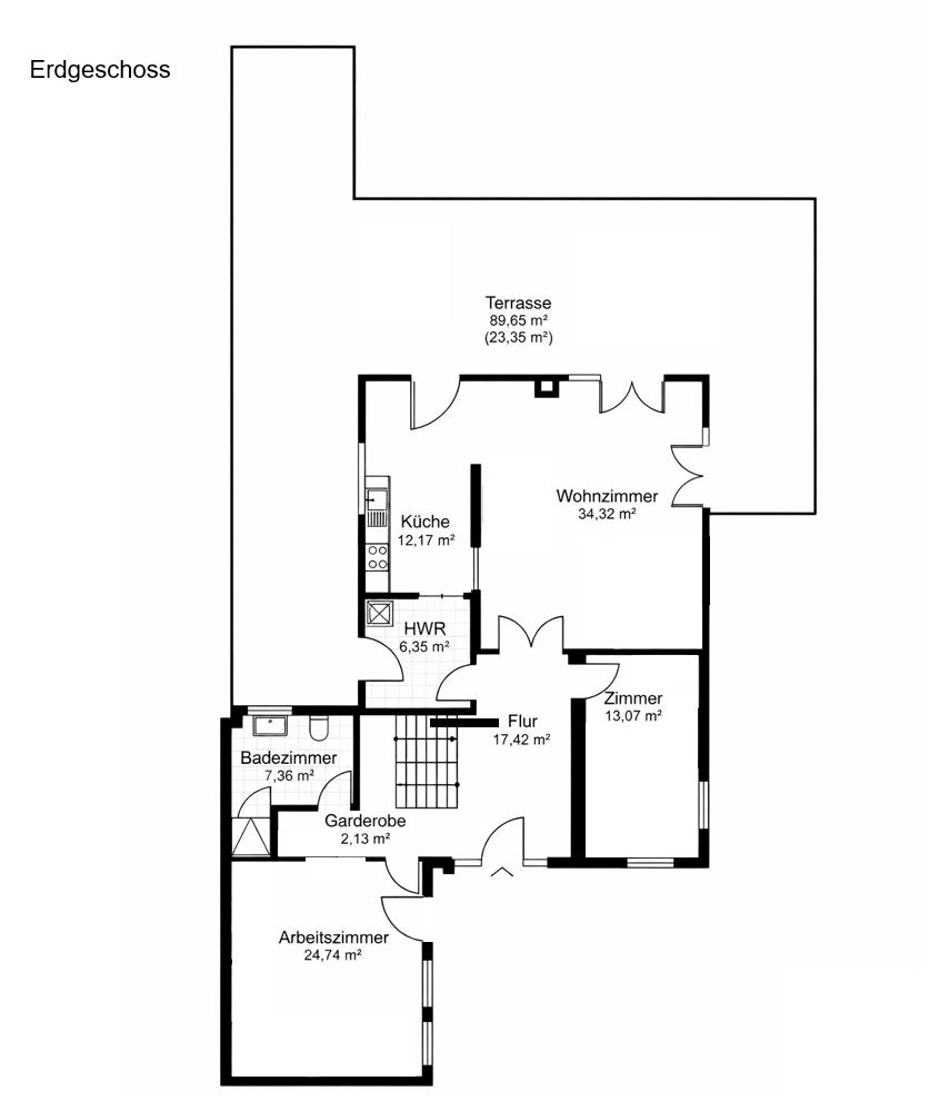
Objektbeschreibung

Ein architektonisches Highlight in ruhiger Wohnlage: Dieses luxuriöse Einfamilienhaus in Ahrensburg verbindet modernste Energieeffizienz mit exklusivem Wohnkomfort auf höchstem Niveau. Großzügige Räume, ein privater SPA-Bereich und ein traumhaft angelegter Garten schaffen ein Zuhause, das keine Wünsche offenlässt.

WeiterlesenWeniger anzeigen

Ausstattung

Dieses freistehende Einfamilienhaus wurde 2014 auf einem großzügigen Grundstück von ca. 1.023 m² errichtet und präsentiert sich heute in neuwertigem Zustand. Auf ca. 216 m² Wohnfläche sowie zusätzlich 61 m² hochwertig ausgebauter Nutzfläche im Keller entfaltet sich ein durchdachtes Raumkonzept mit luxuriöser Ausstattung.

Highlights im Überblick:
Ca. 216 m² Wohnfläche auf zwei Ebenen
Zusätzlich ca. 61 m² wohnlich ausgebaute Fläche im Keller
5 Zimmer, davon:
- Großzügiger Wohn- & Essbereich mit bodentiefen Fenstern
- Büro mit Glasfront & Südausrichtung
- Gästezimmer im Erdgeschoss
- 3 moderne Badezimmer (alle mit ebenerdiger Dusche)

Hochwertige, halboffene Küche mit:
- Kaffeevollautomat
- Weinkühlschrank
- Elegant integrierten Geräten

Der lichtdurchflutete Wohnbereich überzeugt mit Kamin, Fußbodenheizung und Klimaanlage – perfekt für jede Jahreszeit. Große Fensterfronten öffnen den Blick in den Garten und sorgen für ein außergewöhnliches Wohngefühl. Die auf den Bildern gezeigten Möbel und Einrichtungsgegenstände können nach Absprache vollständig übernommen werden.

Das Erdgeschoss bietet die Möglichkeit, mit geringem Aufwand eine separate Wohneinheit mit eigenem Zugang zu schaffen – ideal für Gäste, Mehrgenerationenwohnen oder Vermietung.

Der hochwertig ausgebaute Keller wird zur persönlichen Wellness-Oase:
- Großzügiger Whirlpool
- Private Sauna
- Dritte ebenerdige Dusche
- Separater Fitnessraum
Hier genießen Sie Entspannung und Gesundheit direkt im eigenen Zuhause.

Technik & Energieeffizienz:
- Wärmepumpe
- Photovoltaikanlage mit Energiespeicher
- Dreifachverglasung
- Smarthome-Steuerung
- Fußbodenheizung im gesamten Haus
- Elektrische Rollläden
- Entkalkungsanlage
Insgesamt besitzt das Haus die Energieeffizienzklasse A+ mit einem Endenergieverbrauch von nur 23,5 kWh/(m²·a).

Gartenidyllle & Grundstück:
Der sichtgeschützte Garten ist professionell angelegt und dank automatischem Bewässerungssystem ganzjährig in Bestform. Die große, teils überdachte Terrasse lädt zu entspannten Sommerabenden ein – mit Blick auf die aufgehende Sonne.

Zusätzlicher Stauraum steht im Dachboden zur Verfügung. Ein Carport rundet das Angebot ab.

WeiterlesenWeniger anzeigen
Balkon
Ja
Stellplatz
Ja
Ausstattung
Luxus
Dusche
Ja
Bad mit Badewanne
Ja
Bad mit Fenster
Ja
Pissoir
Ja
Einbauküche
Ja
Kamin
Ja
Carport
Ja
Garten
Ja
Sauna
Ja
Pool
Ja
Keller
Ja
Abstellraum
Ja
Gäste WC
Ja

Energieeffizienzklasse

A+
A
B
C
D
E
F
G
H

Energie & Heizung

Baujahr2014
Energieausweisliegt vor
Energie­ausweistypVerbrauchsausweis
Erstellt am02.02.2024
Gültig bis01.02.2034
Endenergieverbrauch23,5 kWh/(m²·a)
EnergieeffizienzklasseA+
HeizungsartWärmepumpe

Lage

Dieses exklusive Zuhause liegt in einer ruhigen und dennoch hervorragend angebundenen Wohngegend von Ahrensburg. Ahrensburg ist die größte Stadt des Kreises Stormarn, in attraktiver Wohnlage zwischen Hamburg und Lübeck. Ahrensburg vereint eine sehr gute städtische Infrastruktur mit hoher Wohn- und Lebensqualität und zählt zu den gefragtesten Wohnorten im nordöstlichen Hamburger Umland.

Dank der hervorragenden Verkehrsanbindung ist die Hamburger Innenstadt in rund 25–30 Minuten erreichbar – wahlweise über die Autobahn A1, den Regionalexpress RE 80 oder die U-Bahn-Linie U1. Auch der Hamburger Flughafen liegt nur etwa 21 Kilometer entfernt. Sämtliche öffentlichen Verkehrsmittel sind in den Hamburger Verkehrsverbund eingebunden.

Einkaufsmöglichkeiten, Schulen, Kindergärten, Ärzte sowie vielfältige Freizeit- und Sportangebote (wie bspw. ein Golfplatz) befinden sich in unmittelbarer Nähe. Die aufgelockerte Bebauung und das gepflegte Umfeld machen diese Lage besonders attraktiv für Familien, Berufspendler und alle, die ruhiges Wohnen mit urbaner Erreichbarkeit verbinden möchten.

WeiterlesenWeniger anzeigen

Immobilienfinanzierung berechnen

Berechnen Sie Ihre individuellen Finanzierungskonditionen

Ähnliche Immobilien

In nur 1 Minute
 zum ersten Finanzierungsangebot

Kaufpreis
1.395.000 €
Provisionspflichtig
Ja
Käuferprovision
3,57%
Provisionshinweis
Die angegebene Käuferprovision (inkl. MwSt.) ist verdient und fällig mit Beurkundung des notariellen Kaufvertrages.
Norbert Paliczka

Norbert Paliczka

Exposé anfordern
ID: HA2530922

Sie wünschen mehr Informationen? Jetzt ein Exposé anfragen!