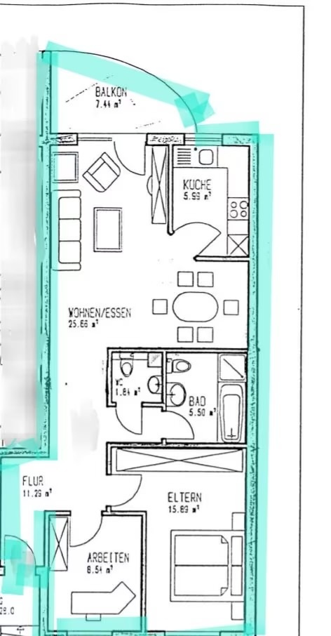
Diese charmante 3-Zimmer Etagenwohnung ist eine wahre Entdeckung in der lebendigen Stadt Frankfurt. Sie erstreckt sich auf 76 Quadratmeter und ist ein wahrer Schatz für Familien, Singles, Paare, Senioren und Studenten. Die Wohnung liegt in einem im Jahr 2000 erbauten Gebäude und strahlt mit ihrer modernen Architektur eine einladende Atmosphäre aus. Der großzügige Wohnbereich präsentiert sich als perfekter Ort zum Entspannen und Genießen. Er bietet genügend Platz für eine gemütliche Sitzecke und ein Esszimmer. Dank der bodentiefen Fenster ist der Raum lichtdurchflutet und bietet einen herrlichen Blick auf den privaten Garten. Die Küche ist mit modernsten Geräten ausgestattet und lädt zum gemeinsamen Kochen und Genießen ein. Das Schlafzimmer ist eine Oase der Ruhe, mit ausreichend Platz für ein großes Bett und einen Kleiderschrank. Das dritte Zimmer kann nach Belieben als Arbeits- oder Gästezimmer genutzt werden. Ein weiteres Highlight der Wohnung ist der Balkon, der zum Entspannen und Genießen einlädt. Ein Kellerabteil und ein Abstellraum bieten zusätzlichen Stauraum. Ein Garagenstellplatz ist im Kaufpreis enthalten, ebenso eine Küche. Alles in allem ist diese Wohnung ein perfekter Ort zum Wohlfühlen und Genießen.
Die Wohnung ist aktuell vermietet.



