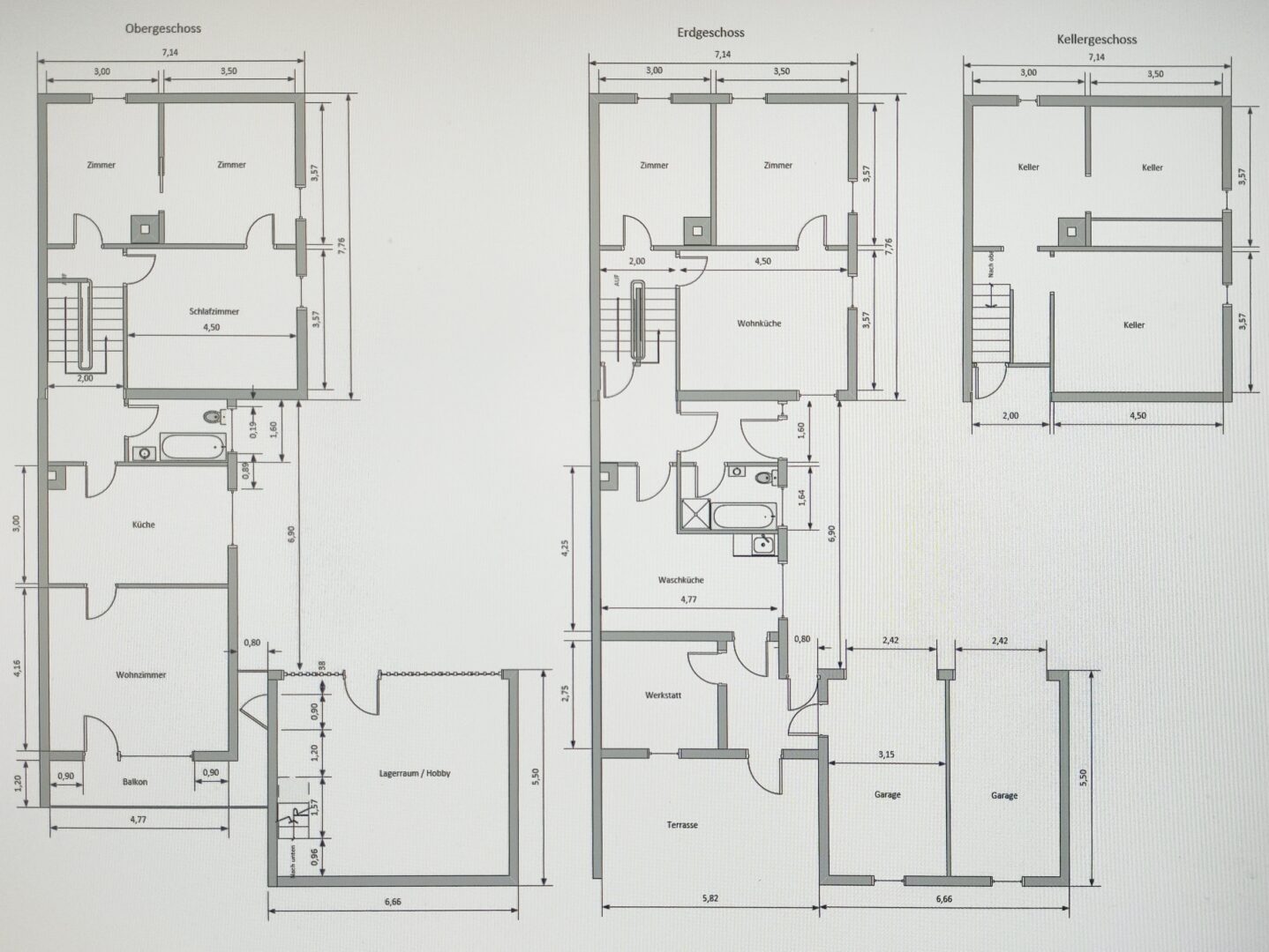
Dieses Objekt ist ein Einfamilienhaus mit sieben Zimmern, das im Herzen von Walzbachtal liegt. Es wurde im Jahr 1951 erbaut und jeweils 1965 und 1971 erweitert. Es strahlt trotz seines sanierungsbedürftigen Zustandes einen besonderen Charme aus und besitzt eine tolle Substanz, wie aus den Bildern zu erkennen. Die Immobilie bietet mit einer Wohnfläche von 131,26 m², einem Grundstück von 446 m² und mit 7 Zimmern ausreichend Platz für eine Familie oder ein Paar. Das Haus ist teilunterkellert und bietet zusätzlichen Stauraum. Das absolute Highlight dieser Immobilie ist der großzügige Garten mit schönem Ausblick in die Ferne, der zu gemütlichen Sommerabenden mit Freunden und Familie einlädt.
WICHTIG - Profitieren Sie von attraktiven Fördermöglichkeiten!
Im Rahmen des Worst Performing Building-Programms (WPB) können Sie beim Erwerb und der energetischen Sanierung dieser Immobilie von staatlicher Unterstützung profitieren:
• Bis zu 150.000 Euro zinsvergünstigter Kredit für die Sanierung zum Effizienzhaus.
• Zuschüsse von bis zu 37.500 Euro zusätzlich möglich.
Nutzen Sie diese Gelegenheit, um Ihre Investition nicht nur wertsteigernd, sondern auch nachhaltig und zukunftssicher zu gestalten!



